EasyManua.ls Logo

YASKAWA MP3000 Series - Using the MSG-SNDE Function with the MP3000 as the Master

YASKAWA MP3000 Series
435 pages
Print Icon
To Next Page IconTo Next Page
To Next Page IconTo Next Page
To Previous Page IconTo Previous Page
To Previous Page IconTo Previous Page
Loading...
2.8 Communications with an OMRON PLC (FINS Communications Service)
Using the MSG-SNDE Function with the MP3000 as the Master
2-211
Ethernet Communications
Using the MSG-SNDE Function with the MP3000 as the Master
This section describes how to communicate with an OMRON PLC by using the MSG-SNDE function.
FINS Commands
The FINS commands that are used with the MSG-SNDE function are listed below. Check that the com-
mand codes and I/O memory types that are listed in the following table are usable with the OMRON PLC
slave.
Name
Command
Code (Hex)
I/O Memory
Type (Hex)
Meaning
MR SR
Reading data from an
I/O memory area
01 01
B0 Reads CIO Area words.
B1 Reads Work Area words.
B2 Reads Holding Area words.
B3 Reads Auxiliary Area words.
82 Reads DM Area words.
Writing data to an I/O
memory area
01 02
B0 Writes to CIO Area words.
B1 Writes to Work Area words.
B2 Writes to Holding Area words.
B3 Writes to Auxiliary Area words.
82 Writes to DM Area words.
Reading non-consec-
utive data from the I/
O memory area
01 04 82 Reads non-consecutive words from the DM Area.
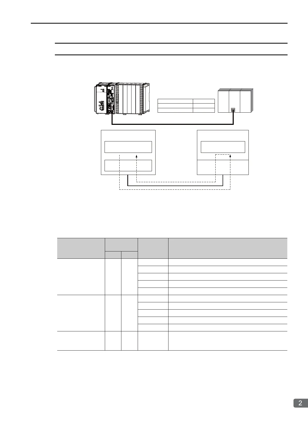
Ethernet
FINS
Ethernet
MP3000
218IFD
Binary
MP3000
(local station)
OMRON CS/CJ/CP-series PLC
(remote station)
Master
Slave
MSG-SNDE function
(ladder application)
CS/CJ/CP-series PLC
Automatic reception
(no ladder programming)
FINS protocol
Communications Protocol
Connection Type
TCP or UDP
Data Code

Table of Contents

Other manuals for YASKAWA MP3000 Series

Related product manuals