EasyManua.ls Logo

YASKAWA MP3000 Series - Using I;O Message Communications with the MP3000 as the Master

YASKAWA MP3000 Series
435 pages
Print Icon
To Next Page IconTo Next Page
To Next Page IconTo Next Page
To Previous Page IconTo Previous Page
To Previous Page IconTo Previous Page
Loading...
2.9 Communications with a KOYO PLC (MODBUS/TCP Protocol)
Using I/O Message Communications with the MP3000 as the Master
2-257
Ethernet Communications
Using I/O Message Communications with the MP3000 as the
Master
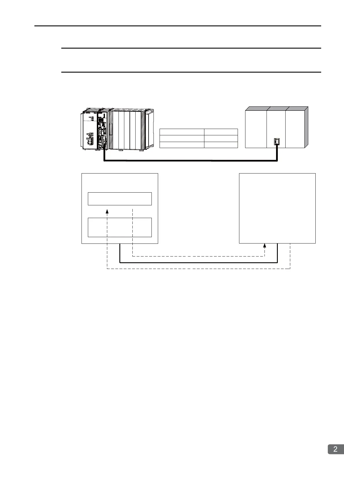
This section describes how to communicate with a KOYO PLC by using I/O message communications.
Note: 1. I/O message communications use 1-to-1 communications.
2. When using the MODBUS/TCP protocol to communicate with a KOYO DL-series PLC, you can only read and
write holding registers.
3. When communicating with multiple remote devices or when you need to perform any operations other than
reading and writing to holding registers, such as reading the states of coils and input relays, and changing the
states of coils, use the Send Message function (MSG-SNDE).
EthernetEthernet
MP3000
218IFD
TCP
Binary
MP3000
(local station)
KOYO DL-series PLC
(remote station)
Master
Communications Protocol
Connection Type
Data Code
Slave
I/O message communications
(no ladder programming)
DL-series PLC
MODBUS/TCP protocol
MODBUS/TCP

Table of Contents

Other manuals for YASKAWA MP3000 Series

Related product manuals