EasyManua.ls Logo

YASKAWA SGM7E - Page 60

YASKAWA SGM7E
172 pages
Print Icon
To Next Page IconTo Next Page
To Next Page IconTo Next Page
To Previous Page IconTo Previous Page
To Previous Page IconTo Previous Page
Loading...
3.3 External Dimensions
3-21
3
Specications, Ratings, and External Dimensions of SGM7D Servomotors
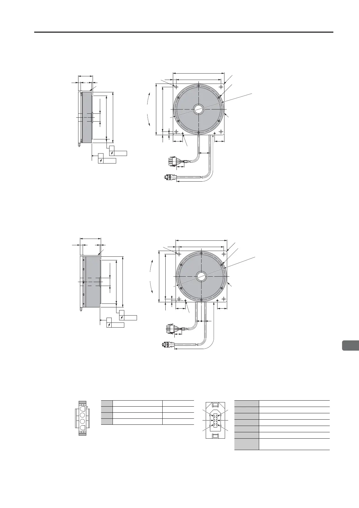
SGM7D-01G
Servomotors with the Cable on the Side
* The shaded section indicates the rotating parts.
Note: Values in parentheses are reference dimensions.
SGM7D-05G
Servomotors with the Cable on the Side
* The shaded section indicates the rotating parts.
Note: Values in parentheses are reference dimensions.
Connector Specifications
Servomotor Connector Encoder Connector
Models
Plug: 350779-1
Pins: 350561-3 or 350690-3 (No.1 to 3)
Ground pin: 350654-1 or 350669-1 (No. 4)
Manufacturer: Tyco Electronics Japan G.K.
Mating Connector
Cap: 350780-1
Socket: 350570-3 or 350689-3
* Only absolute-value models with multiturn data.
Model: 55102-0600
Manufacturer: Molex Japan LLC
Mating connector: 54280-0609
Unit: mm
Approx. mass: 3 kg
*
158 dia.
136 dia.
-0.02
-0.06
Coated surface
45 ±0.7
3
7.7
6
×
M4
×
6
(Divided into equal sections at 60°.)
4 × 7 dia.
CW
direction
CCW
direction
160
14010
4
×
R5
160
14010
5
30
30
146 ±0.2 dia.
(35)
4 × M4 thru-hole
0.01
B
0.01
A
25 dia. hole
300 ±50
(35)
Unit: mm
Approx. mass: 5 kg
65 ±0.7
8.5
136 dia.
-0.02
-0.06
Coated surface
3
6
×
M4
×
6 (Divided into equal sections at 60°.)
4
×
R5
146 ±0.2 dia.
4 × 7 dia.
160
14010
CW
direction
CCW
direction
160
140
10
5
30
30
(16)
(12)
4 × M4 thru-hole
*
0.01
A
0.01
B
25 dia. hole
158 dia.
300 ±50
(35)
1
2
3
4
1 Phase U Red
2 Phase V Gray
3 Phase W Blue
4 FG (frame ground)
Green
4
2
6
3
1
5
1 PG5V
2 PG0V
3* BAT
4* BAT0
5 PS
6 /PS
Connector
c
ase
FG
(frame ground)

Table of Contents

Other manuals for YASKAWA SGM7E

Related product manuals