EasyManua.ls Logo

ABB PVS-100 Series - Main components

ABB PVS-100 Series
70 pages
To Next Page IconTo Next Page
To Next Page IconTo Next Page
To Previous Page IconTo Previous Page
To Previous Page IconTo Previous Page
Loading...
Main components
  39
4
 
       
  
Aux. Breakers and others
1U
Ø200
152
5700
2500
2150
7
8
5
6
6
4
3
2
1
4
3
3
4
9
9
10
12
11
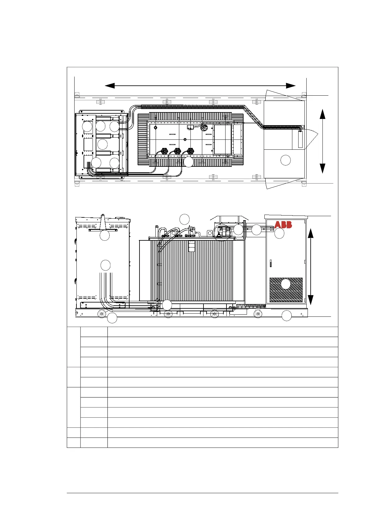
MV switchgear1
A
Lead-through holes for power grid cabling and terminal for external earthing electrode2
SWG cooling air inlet3
SWG cooling air outlet4
AC cabinet cooling air inlet5
B
AC cabinet cooling air outlet6
Busbar LV connections7
C
LV bushing / LV box8
HV bushing connections9
Lead-through holes for cabling from MV transformer to MV switchgear10
MV cables access11D
String inverter cables access12E
Hardware description 19

Table of Contents

Related product manuals