EasyManua.ls Logo

ABB REF615 - Page 202

ABB REF615
240 pages
Print Icon
To Next Page IconTo Next Page
To Next Page IconTo Next Page
To Previous Page IconTo Previous Page
To Previous Page IconTo Previous Page
Loading...
GUID-88FC46C8-8D14-45DE-9E36-E517EA3886AA V1 EN
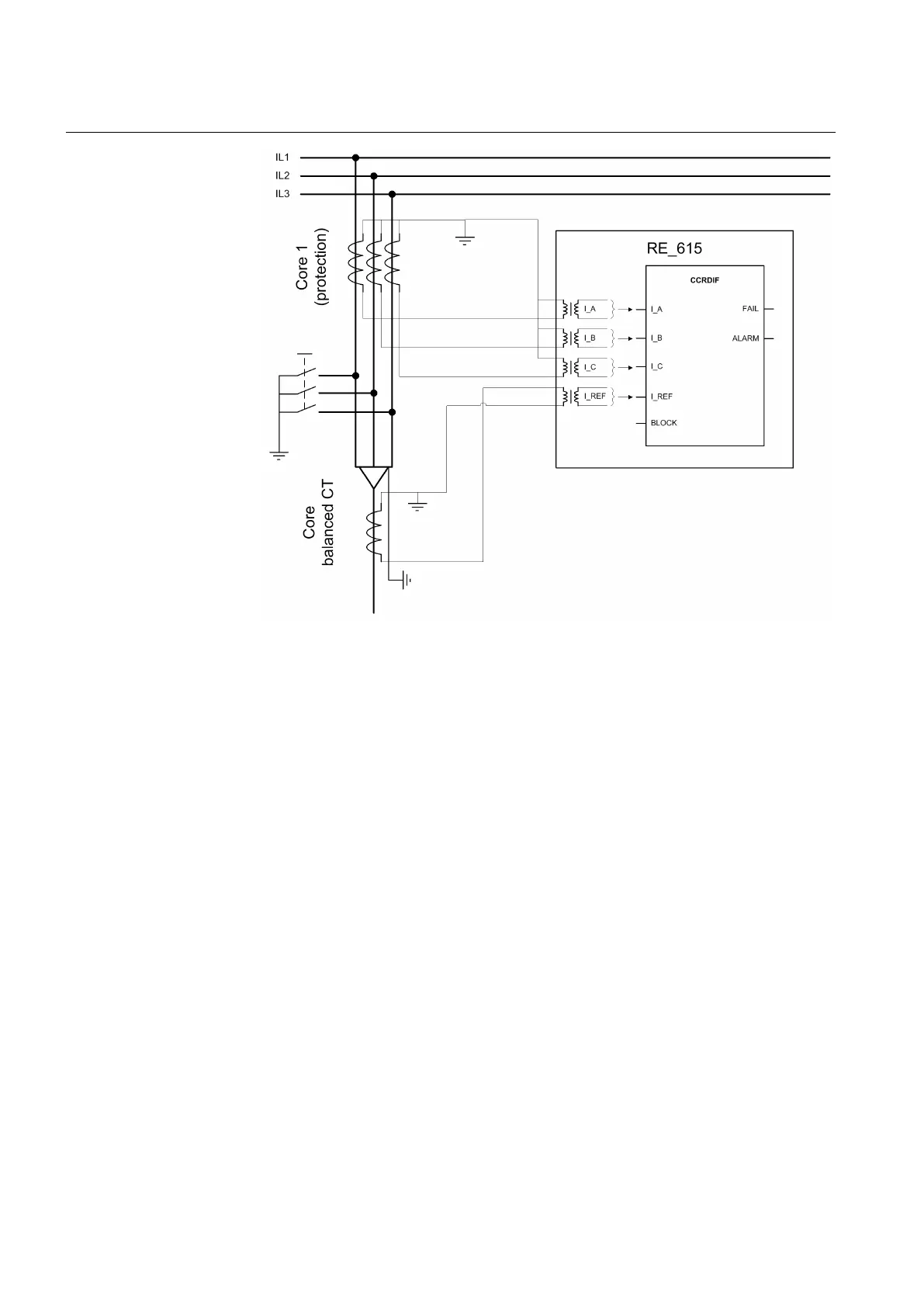
Figure 98: Connection diagram for reference current measurement with core
balanced current transformer
Current measurement with two independent three-phase sets of CT
cores
The figures show diagrams of connections where the reference current is measured
with two independent three-phase sets of CT cores
Section 7 1MRS756378 D
Supervision functions
196 REF615
Application Manual

Table of Contents

Other manuals for ABB REF615

Related product manuals