EasyManua.ls Logo

ABB REF615 - Section 4: Using HMI Locally or via Web Interface; 4.1 Using LHMI; 4.1.1 LHMI Login and Logout

ABB REF615
240 pages
Print Icon
To Next Page IconTo Next Page
To Next Page IconTo Next Page
To Previous Page IconTo Previous Page
To Previous Page IconTo Previous Page
Loading...
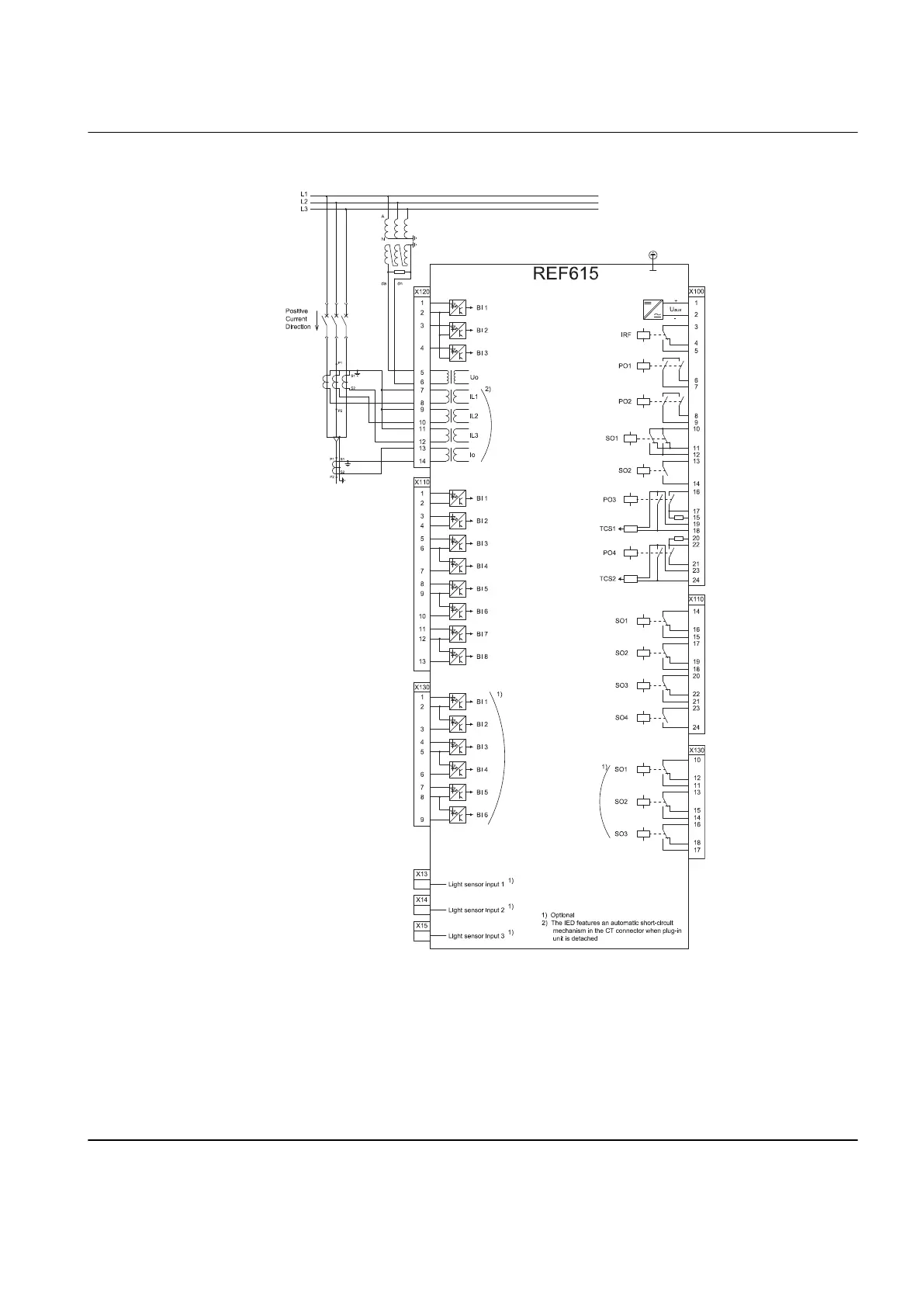
3.2.2 Connection diagrams
A071288 V4 EN
Figure 5: Connection diagram for configurations A and B (overcurrent and
directional earth-fault protection)
[1]
[1] Additional BIO-module (X110 in the diagram) is included in the IED variant B
1MRS756378 D Section 3
REF615 variants
REF615 31
Application Manual

Table of Contents

Other manuals for ABB REF615

Related product manuals