EasyManua.ls Logo

ABB REF615 - 4.2.11 Disturbance Records in WHMI

ABB REF615
240 pages
Print Icon
To Next Page IconTo Next Page
To Next Page IconTo Next Page
To Previous Page IconTo Previous Page
To Previous Page IconTo Previous Page
Loading...
A071344 V4 EN
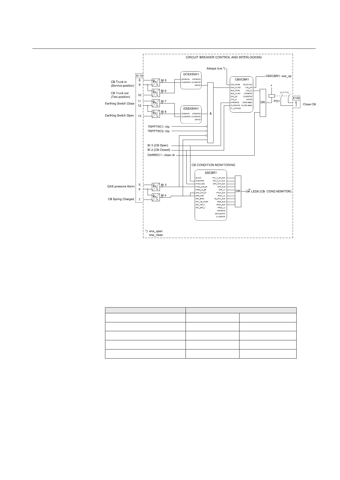
Figure 23: Circuit breaker control
There are three disconnector status blocks (DCSXSWI1…3) available in the IED.
The remaining two not described in the functional diagram are available in SMT for
connection where applicable.
The binary inputs 5 and 6 of the additional card X110 are used for busbar disconnector
(DCSXSWI1) or circuit breaker truck position indication.
Primary device position
Input to be energized
Input 5 (X110:8-9) Input 6 (X110:10-9)
Busbar disconnector closed X
Busbar disconnector open X
CB truck in service position X
CB truck in test position X
The binary inputs 7 and 8 (X110:11-13) are for the position indication of the line side
earthing switch.
The circuit breaker closing is enabled when the ENA_CLOSE input is activated. This
can be done by the configuration logic, which is a combination of the disconnector
or breaker truck and earthing switch position statuses and the statuses of the master
1MRS756378 D Section 3
REF615 variants
REF615 55
Application Manual

Table of Contents

Other manuals for ABB REF615

Related product manuals