EasyManua.ls Logo

ABB SCK - Transformer Specifications

ABB SCK
244 pages
Print Icon
To Next Page IconTo Next Page
To Next Page IconTo Next Page
To Previous Page IconTo Previous Page
To Previous Page IconTo Previous Page
Loading...
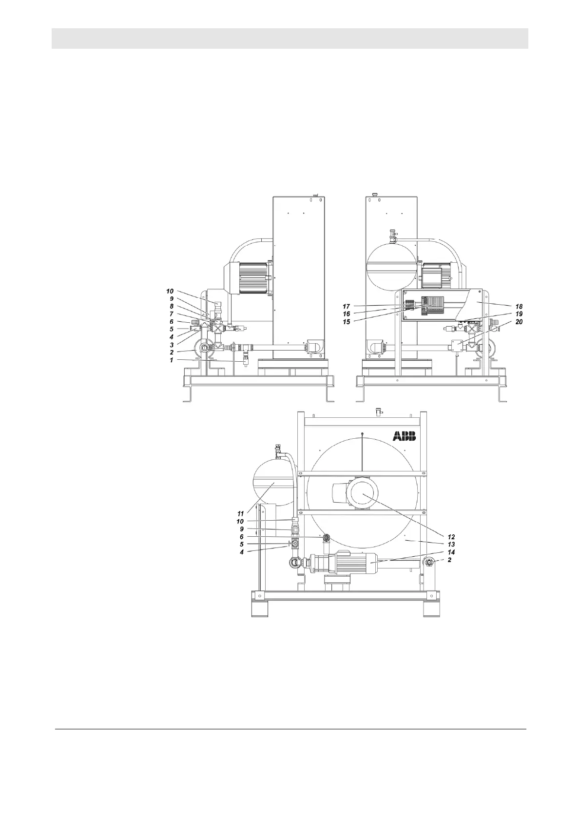
32 System Manual SCK Gas Sampling System 42/23-81 EN Rev. 4
Cooling module
Owing to the prevailing operating conditions it is necessary to cool the gas sam-
pling probe. The probe cooling system serves to provide and monitor the cooling
water supply. In addition to the speed-controlled heat exchanger and cooling water
transport unit, this unit also houses all transducers for monitoring cooling water.
The completely closed system monitors the following parameters:
Cooling water temperature
Cooling water flow rate
Cooling water pressure
The following illustrations show the cooling module:
Meaning
Structure

Table of Contents

Other manuals for ABB SCK

Related product manuals