EasyManua.ls Logo

ABB Uvisor SF910i - Page 161

ABB Uvisor SF910i
190 pages
Print Icon
To Next Page IconTo Next Page
To Next Page IconTo Next Page
To Previous Page IconTo Previous Page
To Previous Page IconTo Previous Page
Loading...
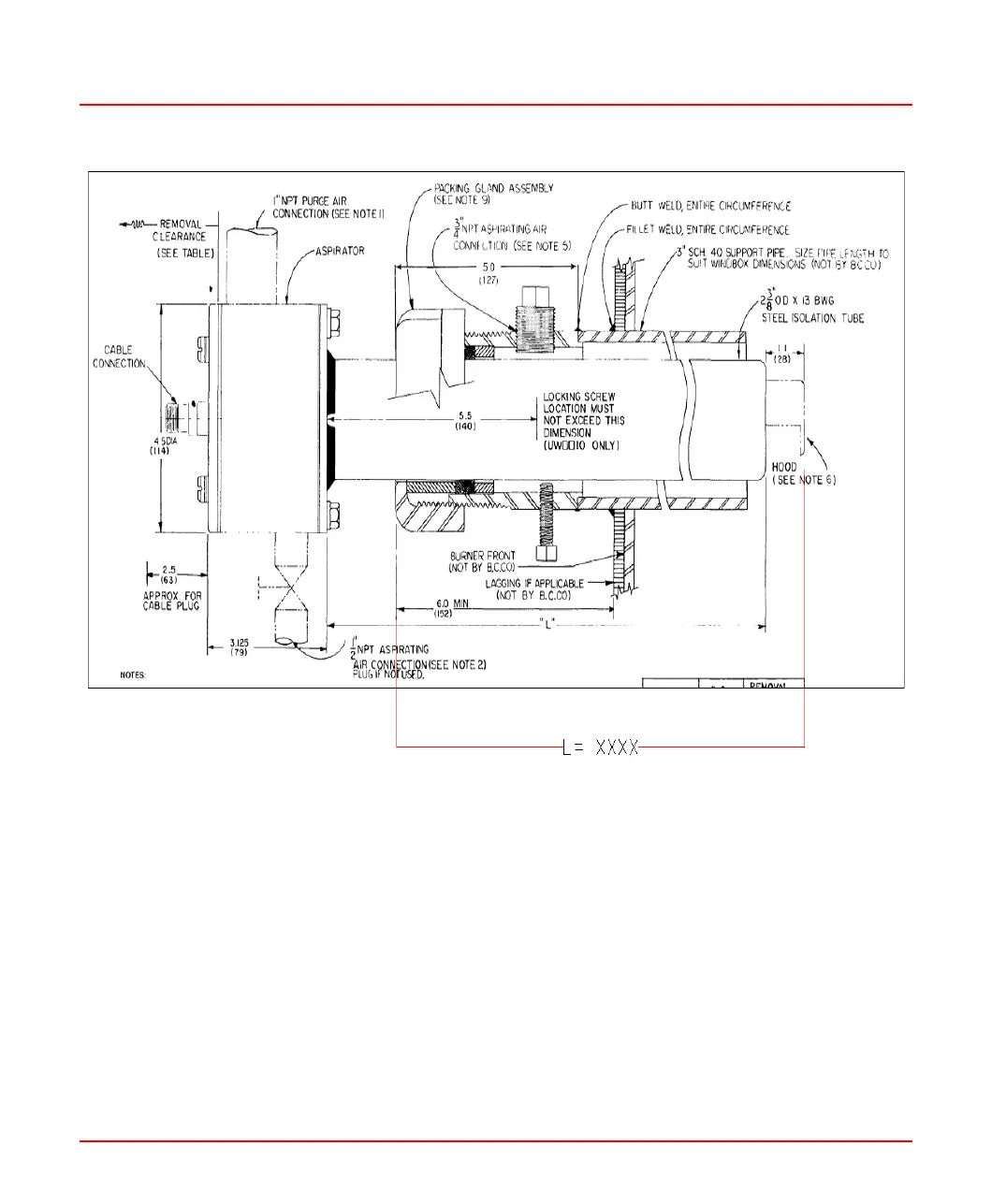
Figure E.10: Typical Bailey Flame ON Installation
8VZZ005286 B 161
E Drawings

Table of Contents