EasyManua.ls Logo

Allen-Bradley 1794-IF4I - Page 47

Allen-Bradley 1794-IF4I
147 pages
To Next Page IconTo Next Page
To Next Page IconTo Next Page
To Previous Page IconTo Previous Page
To Previous Page IconTo Previous Page
Loading...
Publication 1794-6.5.8 - January 2010
Module Programming 47
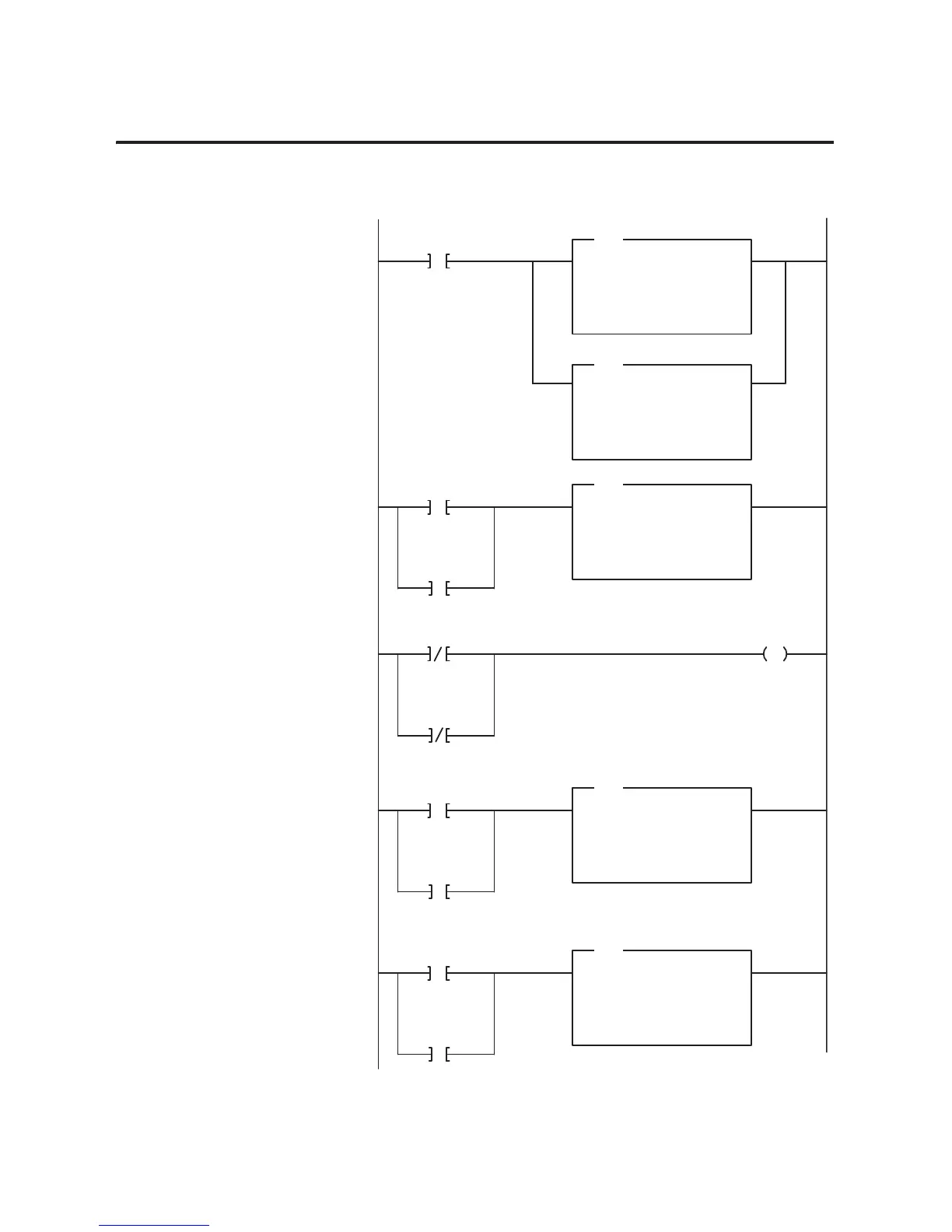
Figure 1.9
SLC Programming for the 1794-IF2XOF2I Isolated Analog Input/Output Module
PowerUp Bit
0000
Program
Action
S2:1
15
BTR_CONTROL
COP
COPY FILE
SOURCE
DEST
#B3:100
#M0:1.100
LENGTH
3
BTW_CONTROL
COP
COPY FILE
SOURCE
DEST
#B3:110
#M0:1.200
LENGTH
3
COP
COPY FILE
SOURCE
DEST
#M1:1.100
#B3:0
LENGTH
4
0001
BTR PENDING
B3:5
0
This
rung configures the block transfer operation
type, length, and RIO address at power-up. Bit
B3:100/7 must be set to 1 to indicate a BTR and
bit B3:1
10/7 must be 0 to indicate a BTW
.
U
BTR DONE BIT
B3:0
13
CHK BTR ST
ATUS
B3:5
1
BTR ERROR BIT
B3:0
12
0002
CHK BTR ST
ATUS
B3:5
1
COP
COPY FILE
SOURCE
DEST
#M1:1.100
#B3:0
LENGTH
4
0003
BTW PENDING
B3:5
0
CHK BTW STATUS
B3:5
1
BTR status is copied to the B3:0 area when a BTR
is in progress.
Unlatch the bit that continues to check the BTR status.
BTW status is copied to the B3:100 area when a
BTW is in progress.
T
o next page.
COP
COPY FILE
SOURCE
DEST
#M1:1.200
#B3:10
LENGTH
4
0004
BTW PENDING
B3:15
0
CHK BTW STATUS
B3:15
1

Table of Contents

Related product manuals