EasyManua.ls Logo

Allen-Bradley PowerFlex 755T - Page 152

Allen-Bradley PowerFlex 755T
192 pages
Print Icon
To Next Page IconTo Next Page
To Next Page IconTo Next Page
To Previous Page IconTo Previous Page
To Previous Page IconTo Previous Page
Loading...
152 Rockwell Automation Publication 750-IN100B-EN-P - July 2017
Chapter 6 I/O Wiring
Digital Input
PLC Output Module
External supply
11-Series I/O Module TB1
•Set Selection
Port 00:108 [DI M Stop] = Port nn:1 [Dig In Sts], bit 0 = Input 0 (11-Series I/O Module)
Port 00:117 [DI M Start] = Port nn:1 [Dig In Sts], bit 1 = Input 1 (11-Series I/O Module)
View Results
Port nn:1 [Dig In Sts] (11-Series I/O Module)
Port 10/11:354 [Motor Side Sts 1]
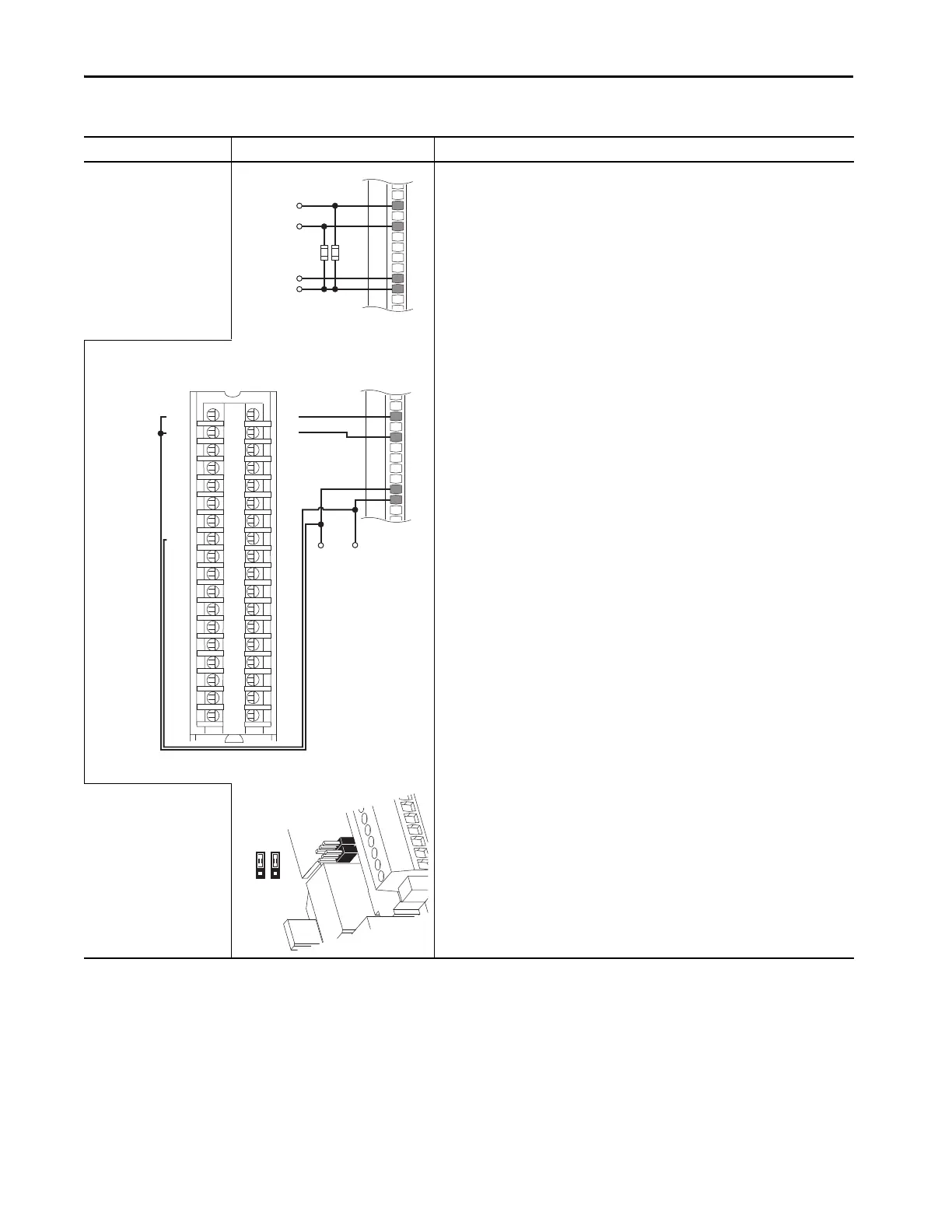
Note: Pull down resistors may be required by some PLC interfaces.
OR
Table 28 - 11-Series I/O Module TB1 Wiring Examples (continued)
Input/Output Connection Example Required Parameter Changes
Di0
Di1
Ip
Ic
Neutral/Common
+120V AC/24V DC
Control from
Prog. Controller
10k Ohm, 2 Watt
(See Note)
Di0
Di1
Ip
Ic
12
34
5
6
78
910
1112
1314
1516
1718
1920
2122
2324
2526
2728
2930
31
32
3334
3536
+DC-0
+DC-0
+DC-0
+DC-0
+DC-1
+DC-0
+DC-0
+DC-0
GND-0
Not Used
+DC-1
+DC-1
+DC-1
+DC-1
+DC-1
+DC-1
GND-1
GND-1
OUT-0
OUT-1
OUT-2
OUT-3
OUT-8
OUT-4
OUT-5
OUT-6
OUT-7
Not Used
OUT-9
OUT-10
OUT-11
OUT-12
OUT-13
OUT-14
OUT-15
Not Used
+24V DC
Common
PLC
1756-0B16D
PLC TB
11-Series I/O Module TB1
P3
P8
3
1
3
1

Table of Contents

Other manuals for Allen-Bradley PowerFlex 755T

Related product manuals