EasyManua.ls Logo

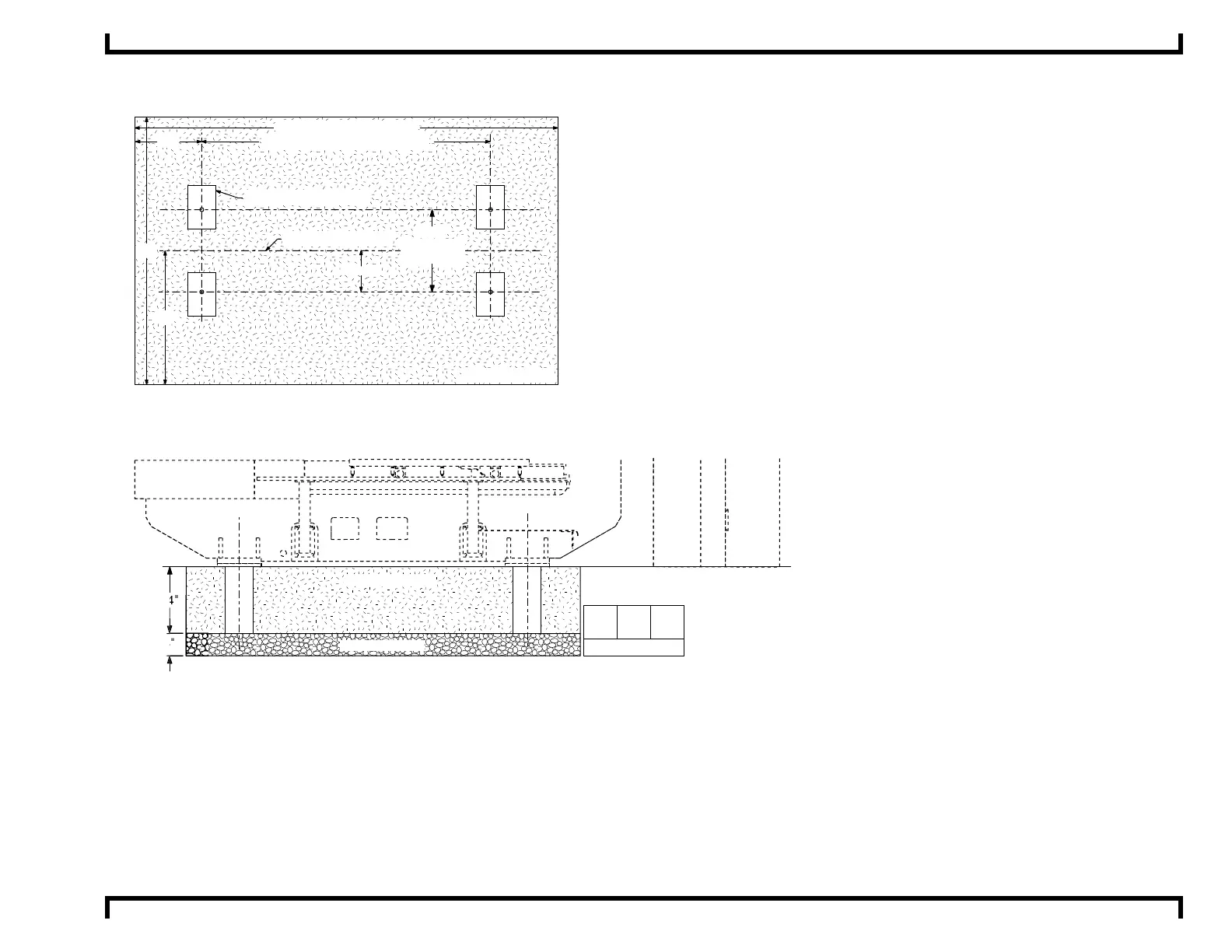
Amada Vipros 357 Queen - Plan View - Foundation Vipros 357 Queen; Elevation - Foundation Vipros 357 Queen

Amada Vipros 357 Queen
37 pages
Print Icon
To Next Page IconTo Next Page
To Next Page IconTo Next Page
To Previous Page IconTo Previous Page
To Previous Page IconTo Previous Page
Loading...
Vipros 357 Queen with Fanuc 18PC User Pre-installation Guide ©Amada America, Inc.
Print Date 01/24/2001 Revision 4.0 This document available on the World Wide Web at http://www.amada.com Page 23 of 37
Plan View - Foundation Vipros 357 Queen
Existing Floor
14.75"
103.1" Anchor Bolt Centerline
151.1" Foundation Length
24"
48"
96"
29.5"
Anchor-bolt
Centerline
Machine Centerline
Hole in Foundation (4)
New Foundation
Elevation - Foundation Vipros 357 Queen
Existing Floor Line
New Foundation
Hydralic
Unit
Fanuc
18p Control
12"12" 12"
Scale
Crushed Stone
24
8

Table of Contents

Related product manuals