EasyManua.ls Logo

Atlas Copco GA 75+

Atlas Copco GA 75+
212 pages
To Next Page IconTo Next Page
To Next Page IconTo Next Page
To Previous Page IconTo Previous Page
To Previous Page IconTo Previous Page
Loading...
Water requirements for open water circuits
For open, non-recirculation water circuits, the major problems usually encountered are related to deposit
control, corrosion control and microbiological growth control. To minimize these problems, the water should
meet a number of requirements. See section Cooling water requirements. If in any doubt, consult Atlas Copco.
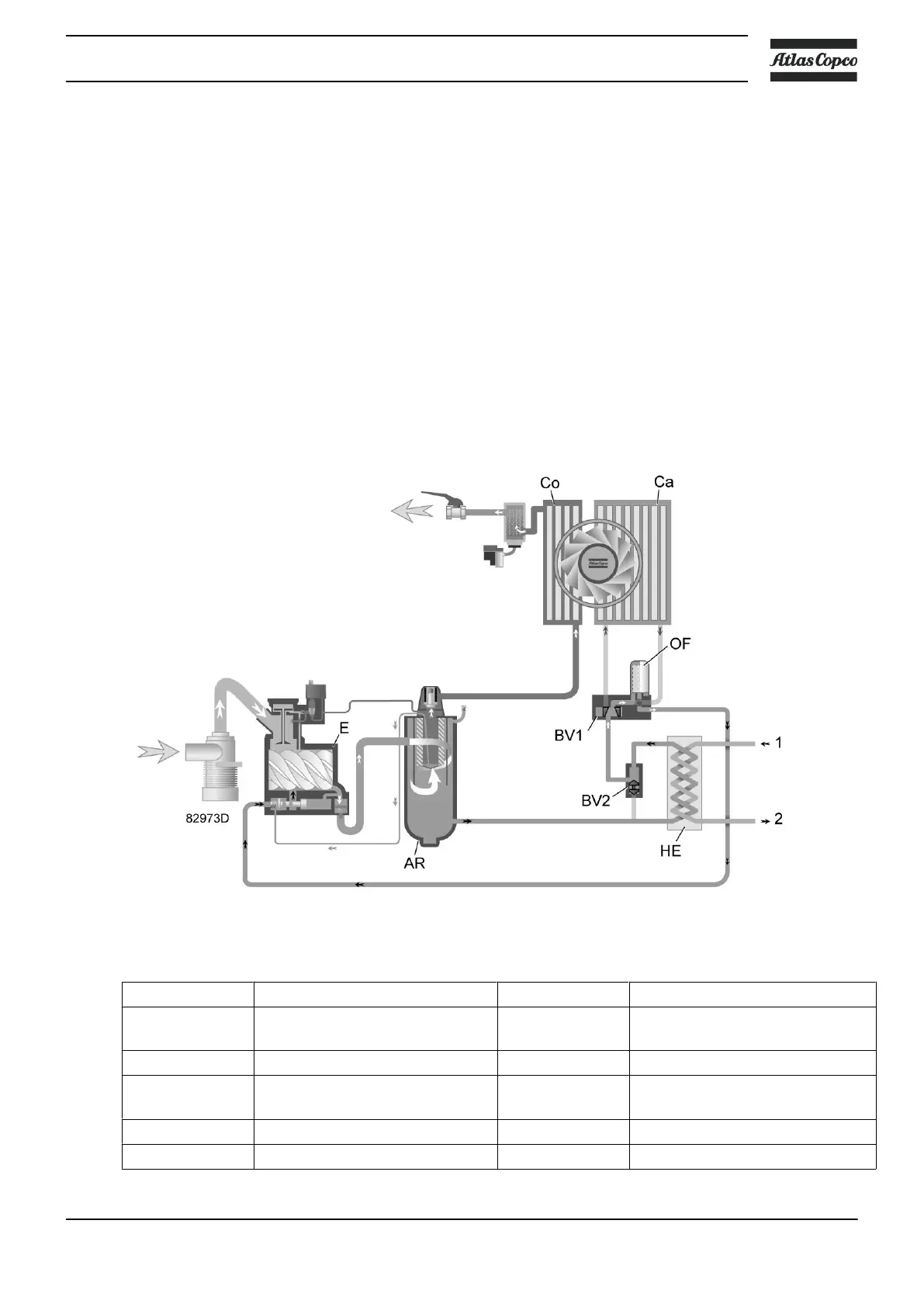
6.3 Operation
Description
The compressor oil flow is controlled by two thermostatic valves (BV1 and BV2), ensuring reliable
compressor operation and optimum energy recovery.
Bypass valve (BV1) is integrated in the oil filter housing of the compressor and controls the oil flow through
the main oil cooler (Co) of the compressor. Bypass valve (BV2) controls the oil flow through the oil/water
heat exchanger (HE) of the ER unit. Both valves consist of an insert (thermostat) mounted in a housing.
Flow diagram of compressor with energy recovery system
Reference Designation Reference Designation
BV2 Thermostatic bypass valve of ER
unit
OF Oil filter
HE Oil/water heat exchanger (ER unit) AR Oil separator vessel
E Compressor element BV1 Thermostatic bypass valve in oil
filter housing
Co Oil cooler (compressor) Ca Aftercooler (compressor)
1 Water inlet 2 Water outlet
Instruction book
2920 7109 60 141

Table of Contents

Related product manuals