EasyManua.ls Logo

Avidsen V300 - Page 12

Avidsen V300
Print Icon
To Next Page IconTo Next Page
To Next Page IconTo Next Page
To Previous Page IconTo Previous Page
To Previous Page IconTo Previous Page
Loading...
FR 12
C - INSTALLATION
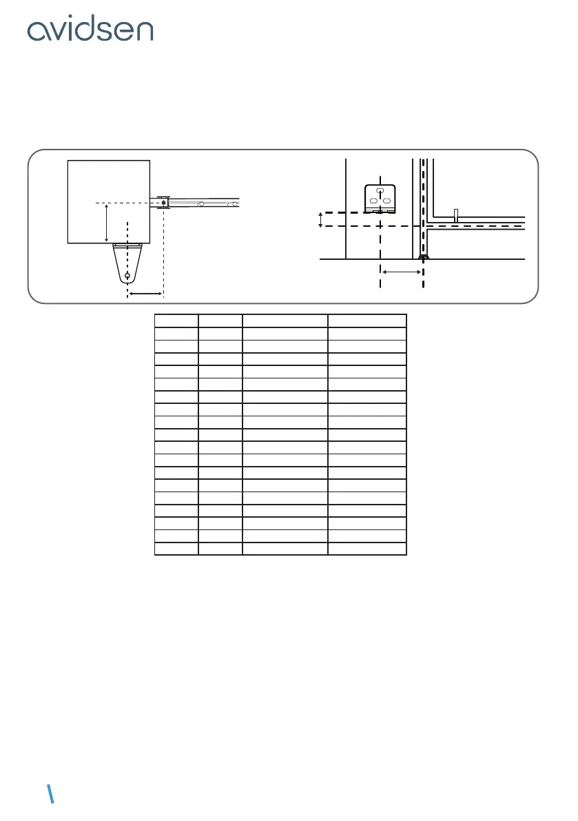
Mesurer la distance D, puis reportez vous au tableau pour connaître la distance B qui vous permet de
déterminer la position de la patte de xation pilier. Le tableau indique aussi le trou dans lequel sera xé le
vérin sur la patte de xation sur le portail.
La hauteur du centre de la patte de xation doit être la même que le centre du montant du portail sur
lequel sera xé le vérin.
D
B
pilier
B
23mm
D (mm) B (mm) trou patte pilier angle max (°)
0 150 4 120°
10 150 4 120°
20 160 4 120°
30 150 4 115°
40 160 4 ou 5 115°
50 150 4 110°
60 155 5 110°
70 145 4 ou 5 105°
80 150 5 105°
90 135 5 100°
100 140 5 100°
110 145 5 100°
120 130 5 95°
130 135 5 95°
140 120 5 90°
150 115 5 90°
160 110 5 90°
170 100 5 90°
Marquer l’emplacement des trous dans le pilier en veillant à ce que la patte de xation pilier soit montée
bien horizontalement à la n. Utiliser des tirefonds de 10 ou tout autre système de xation adapté au
matériau du pilier.
Attention, les efforts sur la patte de xation seront importants lorsque la motorisation sera en marche.
Nous recommandons de sceller des tiges letées d’une longueur d’au moins 15 cm. Si le pilier est en
métal, nous recommandons de souder ou de faire traverser les tiges letées pour les xer avec des écrous
autobloquants.
Consulter un professionnel en cas de doute.
Retourner le vérin et s’assurer que la tige du chariot est à environ 5mm de l’extrémité opposée au moteur.
Sinon, faire déplacer le chariot à l’aide d’une pile 9V LR61. Il est aussi possible de brancher les moteurs à
la carte électronique (voir chapitre branchement) et de lancer le mode manuel an d’alimenter les moteurs
le temps d’ajuster la position du chariot.

Table of Contents

Related product manuals