EasyManua.ls Logo

Azbil Micro Flow MQV9005 - Page 86

Azbil Micro Flow MQV9005
94 pages
Print Icon
To Next Page IconTo Next Page
To Next Page IconTo Next Page
To Previous Page IconTo Previous Page
To Previous Page IconTo Previous Page
Loading...
7-18
Chapter 7. SPECIFICATIONS
z
Model with separate display
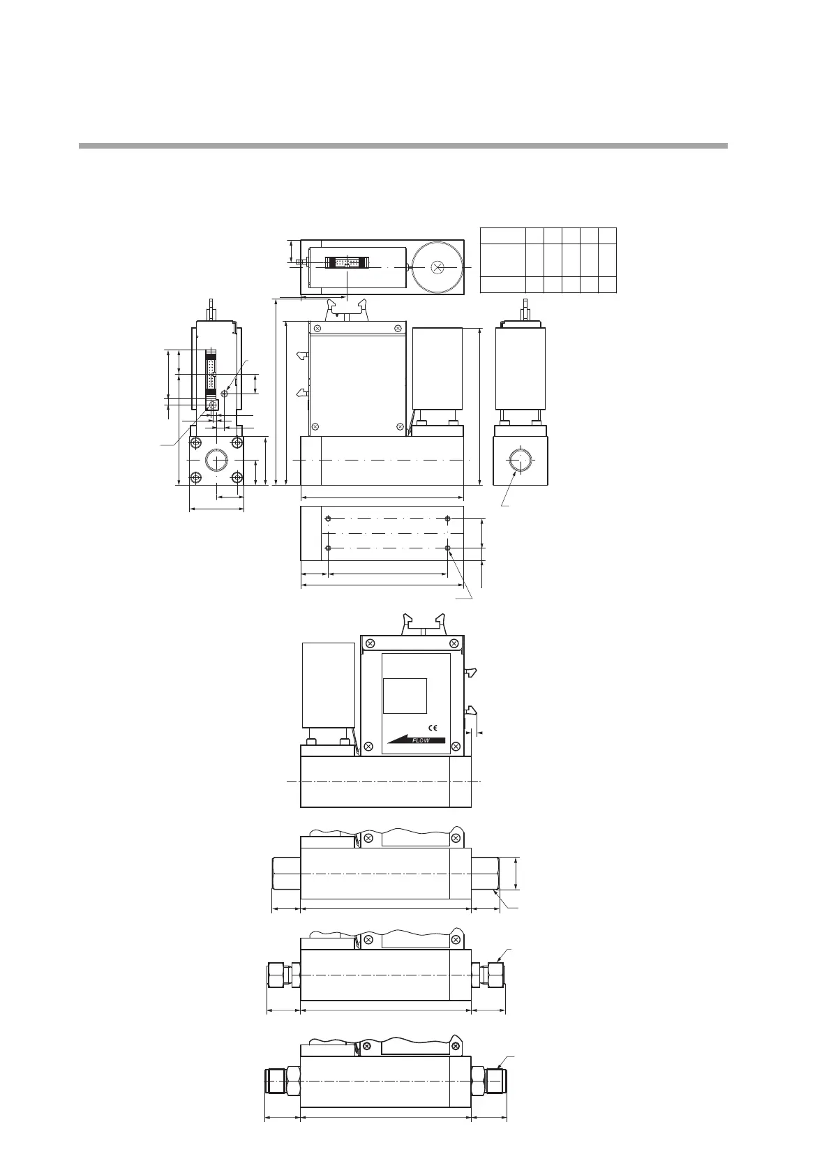
MQV0050K/0200K/0500K
Main unit Unit: mm
Jack for
AC adapter
MQV0500
MQV0050
MQV0200
M4 screw(4) depth 5 min.
2-3/4-16UNF
Model
h1 h2 h3 h4 h5
172 151 145 102 45
173 152 146 103 46
44
22
50
25
23.2
h5
h2
(150)
h4
150
20.5
42.5
h1
h3
5.2
7.3
3.4
18
5.9
Jack for
loader
110
±
0.5
11.5
±
0.5
27
±
0.5
25.3
±
0.5
Rc 1/2" connection type
1/2" Swagelok connection type
1/2" VCR connection type
Rc 1/2" pipe coupling(2)
25 25(150)
HEX 26
(30.7)
(30.7)
(150)
(31.5)(31.5)
(150)
1/2" VCR pipe couple made by Swagelok (2)
SS-8-VCR-1-8STSC11 or equivalent
3/4-16UNF connection type
4
Digital
Mass Flow
Controller
1 : POWER(24V)
2 : POWER(24V)
3 : POWER GND
4 : POWER GND
5 : TEST
6 : D.GND
7 : DA
8 : DB
9 : D.GND
1 0 : ALM OUT
1 1 : EV1 OUT
1 2 : EV2 OUT
1 3 : DI 1
1 4 : DI 2
1 5 : DI 3
1 6 : MODE INPUT
1 7
:
FLOW SP INPUT
1 8 : A.GND
1 9 : FLOW OUT
2 0 : +5V(5mA max)
Pin Assign
MADE IN JAP AN
Pipe coupling made by Swagelok (2)
SS-810-1-8ST
Applicable pipe: outside diameter 1/2",
material SUS316

Related product manuals