EasyManua.ls Logo

Bosch CS5800iAW 12 E G3 - Indoor Unit Power Supply Wiring

Bosch CS5800iAW 12 E G3
41 pages
To Next Page IconTo Next Page
To Next Page IconTo Next Page
To Previous Page IconTo Previous Page
To Previous Page IconTo Previous Page
Loading...
Technical information and reports
Compress 5800i AW – 6721862724 (2023/06)
38
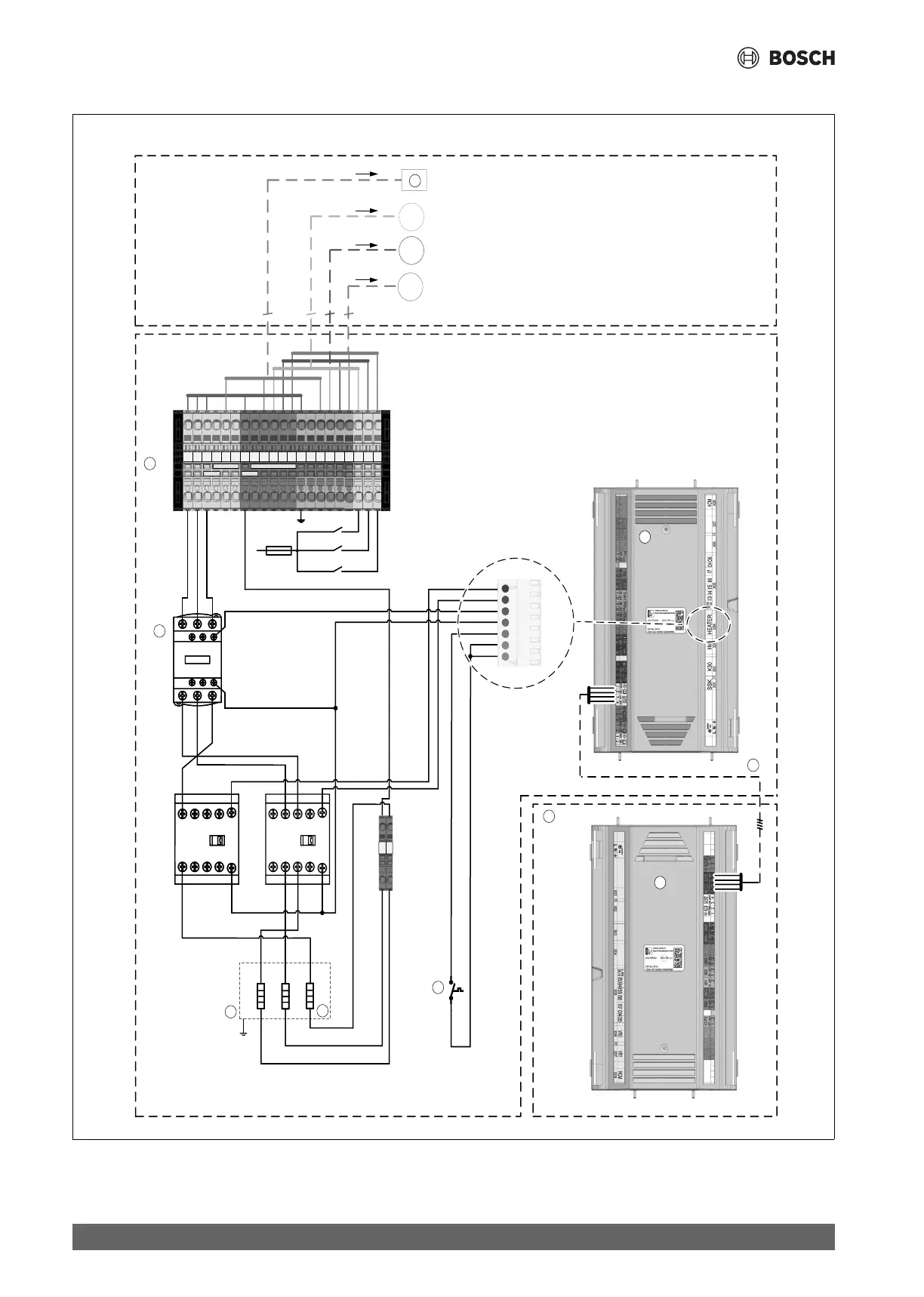
10.3.2 Power supply indoor unit, standard
Fig. 41 Power supply indoor unit, standard
[1] Indoor unit
[2] Outdoor unit
[3] Electrical heater
[4] Heating element 3 x 3kW (3 x 17,6 )
0010049854-001
FE1
Q3
Q2
1
5
6
1NE
2NE
2
PK2M
PW2M
PC1M
L
Q4
Q5
Q6
F5
L1
L2
L3
4PE
5PE
6PE
1L
2L
3L
N
1N
2N
3N
4N
1PE
2PE
3PE
5N
1SL
2SL
3SL
L1
L2
L3
4PE
5PE
6PE
1L
2L
3L
N
1N
2N
3N
4N
1PE
2PE
3PE
5N
1SL
2SL
3SL
3 3 3 3
Q1Q1
EE1 EE2EE3
3
4
10
8
7
9

Table of Contents

Related product manuals