EasyManua.ls Logo

Bosch FHP560 - 11.10 HP + BOILERLESS + DPS

Bosch FHP560
48 pages
Print Icon
To Next Page IconTo Next Page
To Next Page IconTo Next Page
To Previous Page IconTo Previous Page
To Previous Page IconTo Previous Page
Loading...
Applications Manual FHP560 Controller | 21
Bosch Thermotechnology Corp.
Data subject to changePage____ of ____
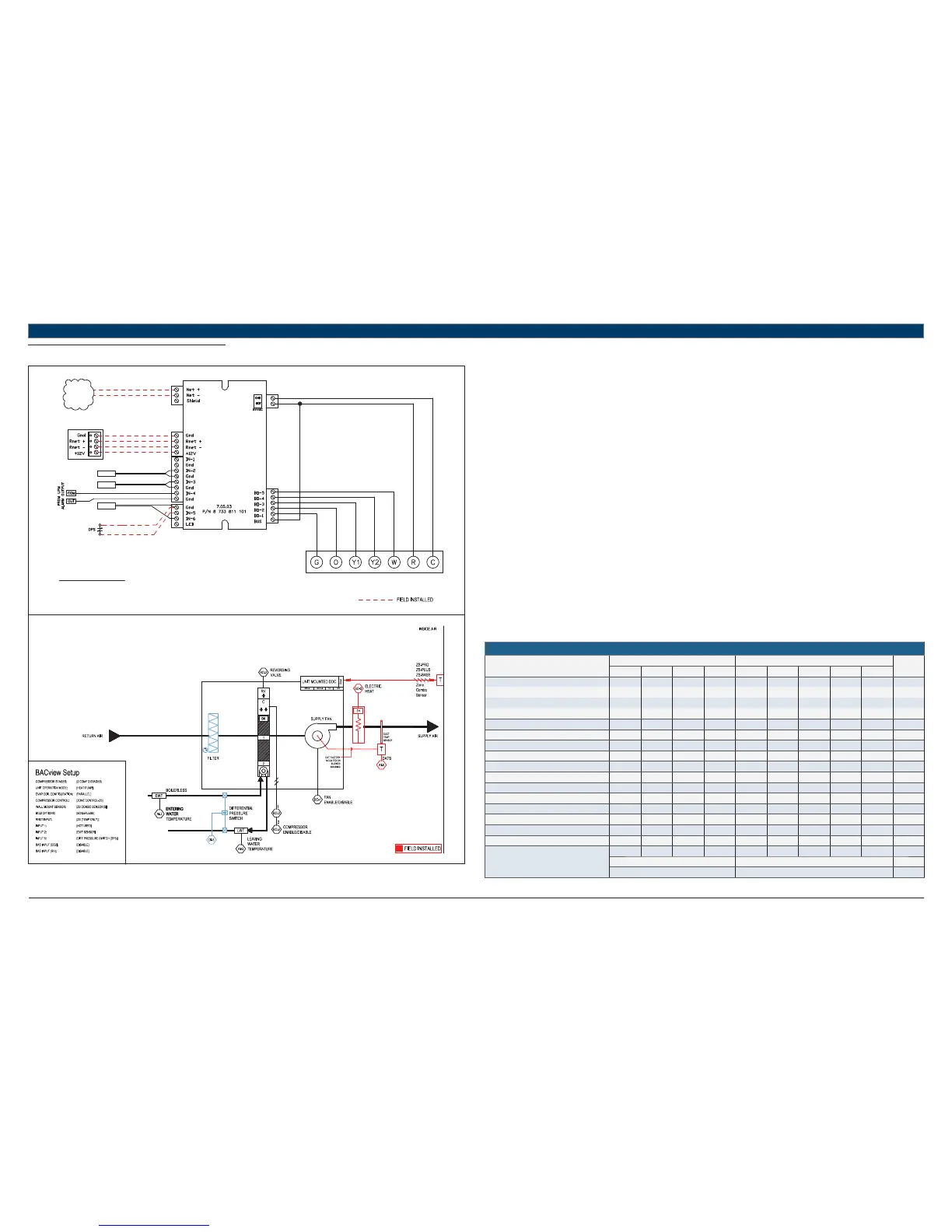
11.10 HP + BOILERLESS + DPS
TO BACnet
MS/TP
NETWORK
LWTS
RED
GREEN
WHITE
BLACK
TERMINATION DETAIL
RNET: SENSORS
STANDARD COMPONENTS:
DATS - DISCHARGE AIR TEMPERATURE SENSOR
LWTS - LEAVING WATER TEMPERATURE SENSOR
EWTS - ENTERING WATER TEMPERATURE SENSOR
REFER TO UNIT WIRING DIAGRAM FOR FURTHER DETAILS
EWTS
FHP560
DATS
Heat Pump Sequence of Operation – HP + BOILERLESS + DPS
Supply Fan Start/Stop:
The supply fan will be started according to the schedule. After the supply fan has been started the control sequence will be enabled.
Zone Control:
The compressor will cycle to maintain the zone temperature at setpoint.
Heat Pump Control:
When the zone temperature falls below the zone temperature setpoint the reversing valve will be disabled to provide heating when the
compressor is running. When the zone temperature rises above the zone temperature setpoint the reversing valve will be enabled to provide
cooling when the compressor is running.
Night Setback:
When in “unoccupied”, the unit will cycle as necessary to maintain the night setback zone temperature at setpoint.
Shutdown:
When the unit is shutdown by either a stop command or system safety the unit will be set as follows:
Supply fan will be on (user configurable)
Compressor(s) will be off
Boilerless Control:
Boilerless Control (BLC) option must be con gured by the equipment integrator. A factory installed entering water temp sensor in IN-5 (IN-2 if IN-5
is unavailable) is used to enable boilerless control.
Entering water temperature values less than 40°F (user con gurable) will enable boilerless control.
Compressor operation is disabled upon boilerless control signal being activated.
An electric heat package must be installed for boilerless control option. Electric heat will be enabled on output BO-5 when boilerless signal is
activated.
Differential Pressure Switch:
Differential pressure switch (DPS) option must be con gured by the equipment integrator. A factory installed differential pressure switch is tied in
to the controller at the con gured input (IN-5 or IEM) and used to prove ow prior to unit compressor operation.
If the DPS opens during normal heating/cooling operation, compressor operation is ceased after 15 secs and an alarm is generated.
Once the switch re-closes, a time delay prevents unit compressor operation until 3 mins has elapsed to ensure ow is fully re-established.
HEAT PUMP
Point Name
Hardware Points Software Points
Show On
Graphic
AI AO BI BO AV BV Sched Trend Alarm
Zone Temperature XXXX
Heating Setpoint XX
Cooling Setpoint XX
Supply Fan Command X X
Compressor Stage 1 Output X X
Compressor Stage 2 Output X X
Reversing Valve Command X X
Occupied Command XXXX
Discharge Air Temperature X X
Leaving Water Temperature X X
Entering Water Temperature X
Aux Electric Heat Output X
Differential Pressure Switch (DPS) X
Condensate Over ow X
Lockout Alarm X
Schedule
Totals
40253111210
Total Hardware Total Software
11 8 10
Table 18

Related product manuals