EasyManua.ls Logo

Branson B Series - Page 131

Branson B Series
210 pages
Print Icon
To Next Page IconTo Next Page
To Next Page IconTo Next Page
To Previous Page IconTo Previous Page
To Previous Page IconTo Previous Page
Loading...
B Series Degreaser Repair Parts
Rev G Page 139
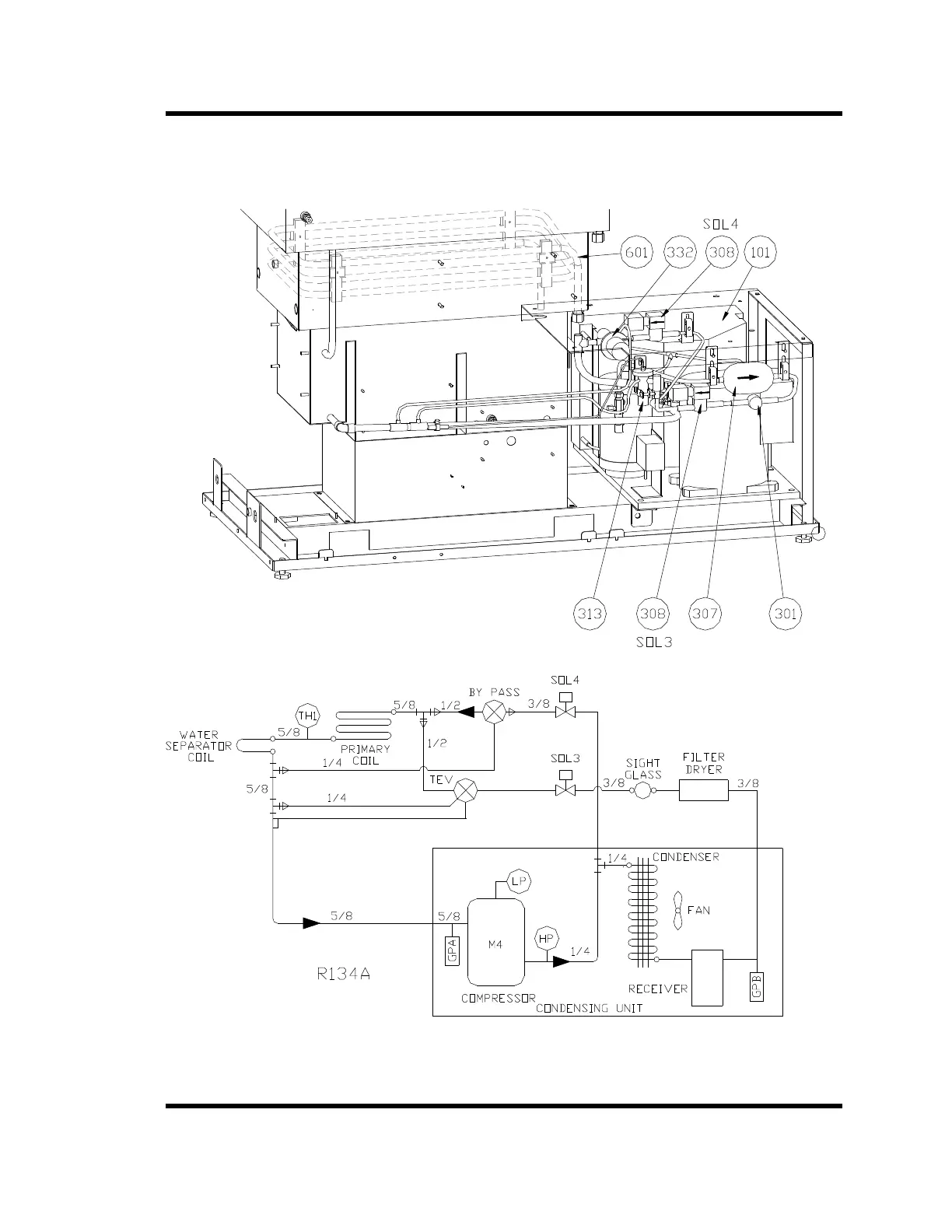
Figure 7-1 B452 Primary Refrigeration Components

Related product manuals