EasyManua.ls Logo

Branson B Series - Page 29

Branson B Series
210 pages
Print Icon
To Next Page IconTo Next Page
To Next Page IconTo Next Page
To Previous Page IconTo Previous Page
To Previous Page IconTo Previous Page
Loading...
B Series Degreaser Controls
Rev G Page 33
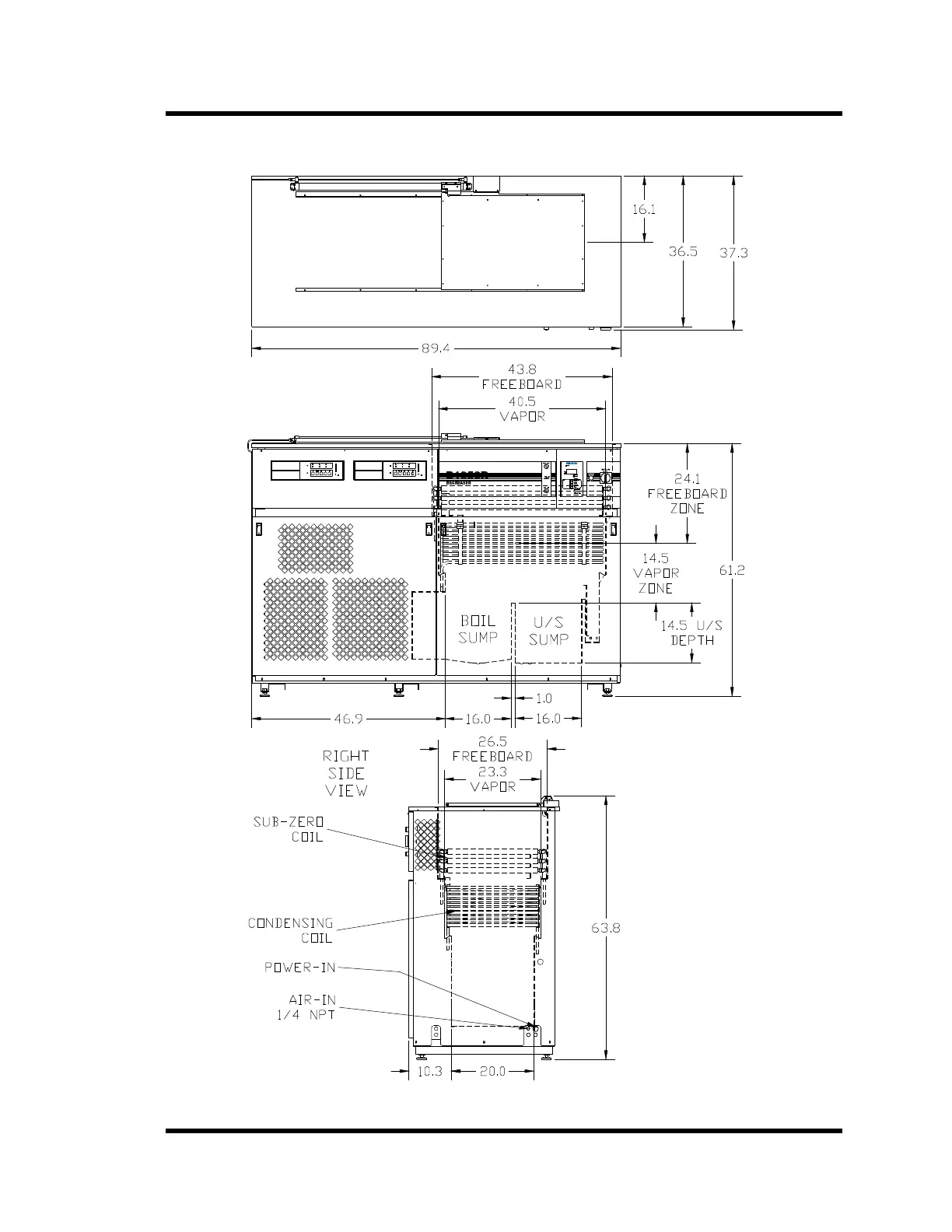
Figure 2-12 B1950R Dimensions

Related product manuals