EasyManua.ls Logo

Branson B Series - Page 31

Branson B Series
210 pages
Print Icon
To Next Page IconTo Next Page
To Next Page IconTo Next Page
To Previous Page IconTo Previous Page
To Previous Page IconTo Previous Page
Loading...
B Series Degreaser Controls
Rev G Page 35
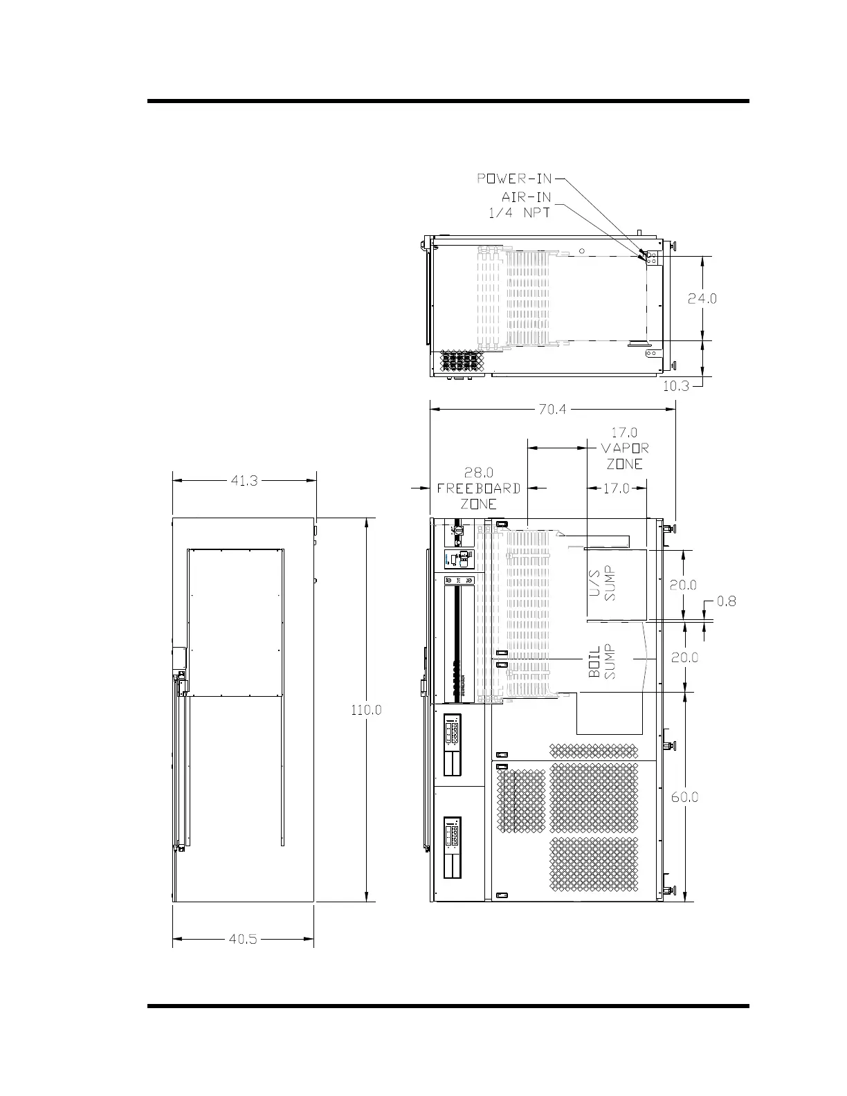
Figure 2-13 B3550R Dimensions

Related product manuals