EasyManua.ls Logo

Brunswick Sync - Coffee Table

Brunswick Sync
72 pages
Print Icon
To Next Page IconTo Next Page
To Next Page IconTo Next Page
To Previous Page IconTo Previous Page
To Previous Page IconTo Previous Page
Loading...
Sync Pre-Installation 35
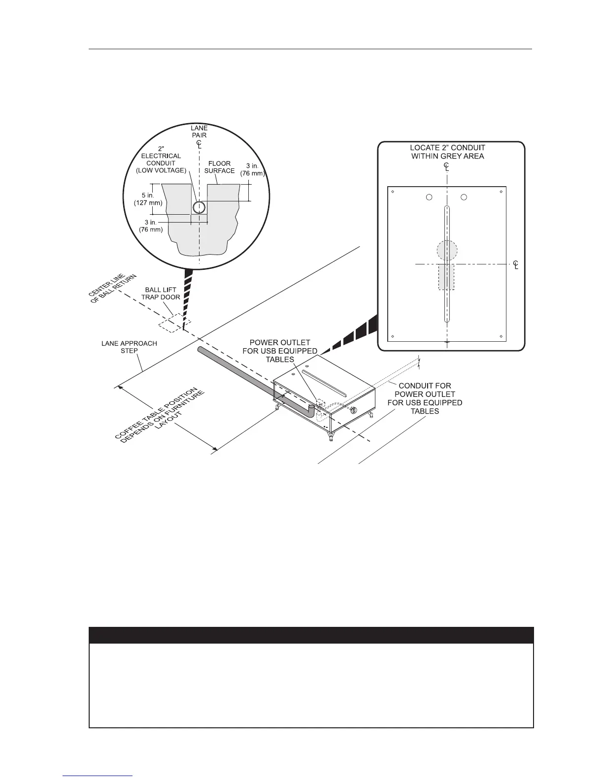
Coffee Table
INSTALLATION INFORMATION
CUSTOMER’S RESPONSIBILITY: A LOW VOLTAGE 2” ELECTRICAL CONDUIT FROM THE CENTER LINE OF THE BALL
LIFT TO THE COFFEE TABLE IS REQUIRED FOR LOW VOLTAGE CABLES. FOR INFORMATION ON INSTALLING
COFFEE TABLE ON WOOD STRINGER, REFER TO SECTION “WOOD FLOOR.”
IF USB POWER CONNECTION OPTION IS AVAILABLE IN COFFEE TABLE, FLUSH OR SIDE MOUNTED DUPLEX
RECEPTACLES ARE REQUIRED.

Table of Contents

Other manuals for Brunswick Sync

Related product manuals