EasyManua.ls Logo

Brunswick Sync - Curtain Wall Structure Support Specifications

Brunswick Sync
72 pages
Print Icon
To Next Page IconTo Next Page
To Next Page IconTo Next Page
To Previous Page IconTo Previous Page
To Previous Page IconTo Previous Page
Loading...
66 Sync Pre-Installation
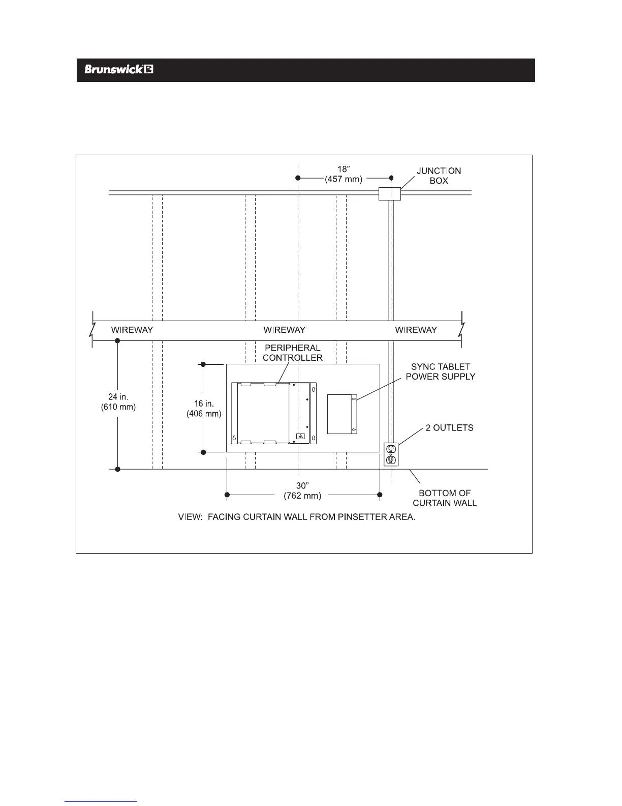
Using the preferred method of support for the curtain wall electronics, the customer is responsible for supply-
ing, installing, and maintaining the proper position of the electronics located on the curtain wall. If a curtain
wall is not available, a support structure must be installed to accommodate the 30 pounds actual/static weight
load per lane pair.
Curtain Wall Structure Support Specications
Curtain Wall Mounting

Table of Contents

Other manuals for Brunswick Sync

Related product manuals