EasyManua.ls Logo

Burnham ALPINE - Page 25

Burnham ALPINE
132 pages
Print Icon
To Next Page IconTo Next Page
To Next Page IconTo Next Page
To Previous Page IconTo Previous Page
To Previous Page IconTo Previous Page
Loading...
25
4. Near-Boiler Vent/Combustion Air Piping
- Floor Mounted Boiler Builds
Refer to Figure 6A and the following Steps:
a. All CPVC vent components supplied with boiler
inside vent carton (3” or 4” Schedule 40 x 30”
long CPVC pipe and 3” or 4” Schedule 80 CPVC
90° Elbow) must be used for near-boiler piping
before transitioning to Schedule 40 PVC (ASTM
2665) pipe components for reminder of vent
system. The CPVC 30” long straight pipe may be
cut to accommodate desired vent conguration
provided both pieces are used in conjunction
with CPVC 90° Elbow before any PVC
components are used. Ensure that the CPVC 90°
Elbow is the rst elbow used in the vent system
as it exits the boiler.
b. Clean all vent and combustion air pipe joints
with primer and secure with transition cement
(4-oz. bottles of primer and cement are
supplied with boiler inside vent carton). Follow
application instructions provided on primer and
cement bottles.
5. Field Installation of CPVC V
ent Pipe - Wall
Mounted Boiler Builds
Refer to Figure 6B and the following Steps:
The wall mounted boiler builds do not require using
3” Schedule 80 CPVC 90° Elbow for near-boiler
vent piping.
a. Insert provided 3” Schedule 40 x 30” long
CPVC pipe thru air box top combination vent/
combustion air collar vent opening and slide
down with a slight twisting motion, until the pipe
lower end is rmly inserted into female end of
factory installed vent connector 90° Elbow.
b. Secure the pipe by tightening the metal strap
worm screw
.
i. The CPVC 30” long straight pipe may be cut
to accommodate desired vent conguration.
If the CPVC 30” straight pipe needs to be
cut into two pieces to accommodate desired
vent conguration, insure that the rst
vertical piece has minimum length of 12
inches and extends 1-5/8” above air box top,
so a coupling or an elbow can be attached to
it.
ii. The factory supplied CPVC vent pipe
(3” Schedule 40 x 30” long CPVC pipe)
must be used for near-boiler piping before
transitioning to Schedule 40 PVC (ASTM
2665) pipe components for reminder of vent
system.
iii. Clean all vent and combustion air pipe
joints with primer and secure with transition
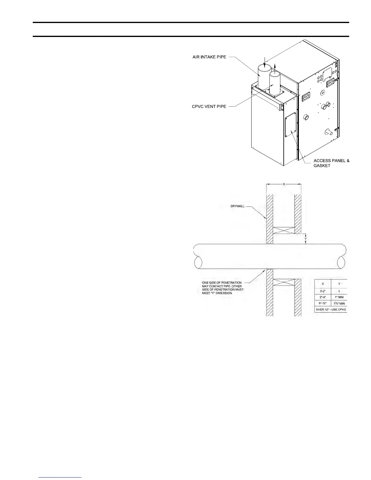
Figure 6B: Field I
nstallation of CPVC Vent Pipe -
Wall Mounted Boiler Builds
Figure 7: CPVC/PVC Vent Pipe
Thru Combustible Wall Installation
cement (4-oz. bottles of primer and cement
are supplied with boiler). Follow application
instructions provided on primer and cement
bottles.
6. Horizontal Vent Termination
a. Standard Two-Pipe Termination
See Figures 7 through 10.
i. Vent Piping
When conditions in Figure 7 cannot
be met, use a single wall thimble [(US
boiler part number 102180-01 (3”) or
102181-01 (4”)] for vent only, when
penetrating a combustible wall. Thimble
IV. Venting (continued)

Other manuals for Burnham ALPINE

Related product manuals