EasyManua.ls Logo

Burnham ALPINE - Page 73

Burnham ALPINE
132 pages
Print Icon
To Next Page IconTo Next Page
To Next Page IconTo Next Page
To Previous Page IconTo Previous Page
To Previous Page IconTo Previous Page
Loading...
73
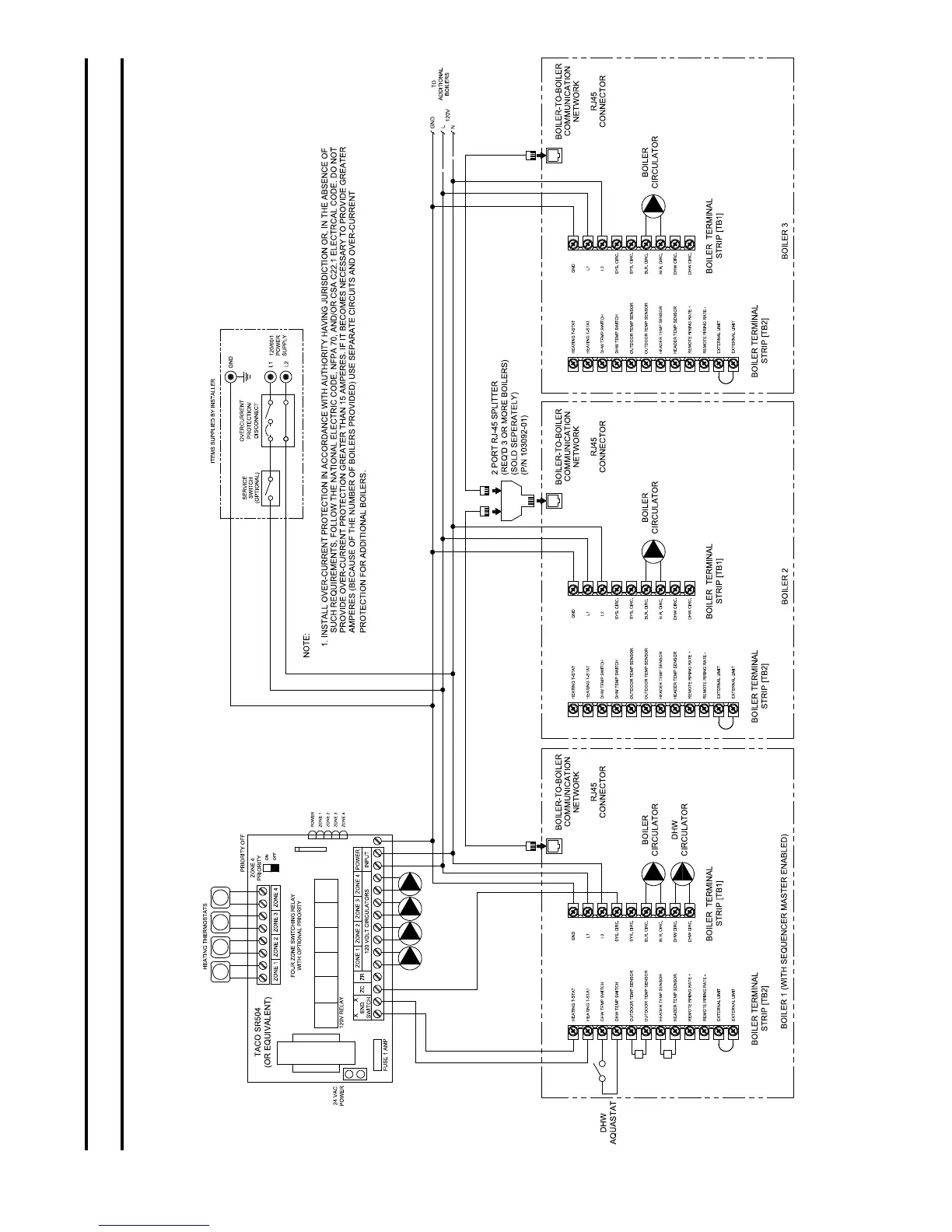
X. Modular Installation (continued)
Figure 43: Three Boiler Modular Wiring Diagram
Internal Sage2.1 Multiple Boiler Control Sequencer
(Three Boilers Shown, Typical Connections for up to Eight Boilers)

Other manuals for Burnham ALPINE

Related product manuals