EasyManua.ls Logo

CCV OPM-C60 - Dimensions of SCR-C Front Cut-out

CCV OPM-C60
68 pages
Print Icon
To Next Page IconTo Next Page
To Next Page IconTo Next Page
To Previous Page IconTo Previous Page
To Previous Page IconTo Previous Page
Loading...
OPM-C60/OPP-C60
System Manual
PA72P002_en
Edition: 40
Page 35 - 68
Product specific instructions
Confidential
© CCV GmbH - It is not allowed to duplicate or distribute this document without our agreement.
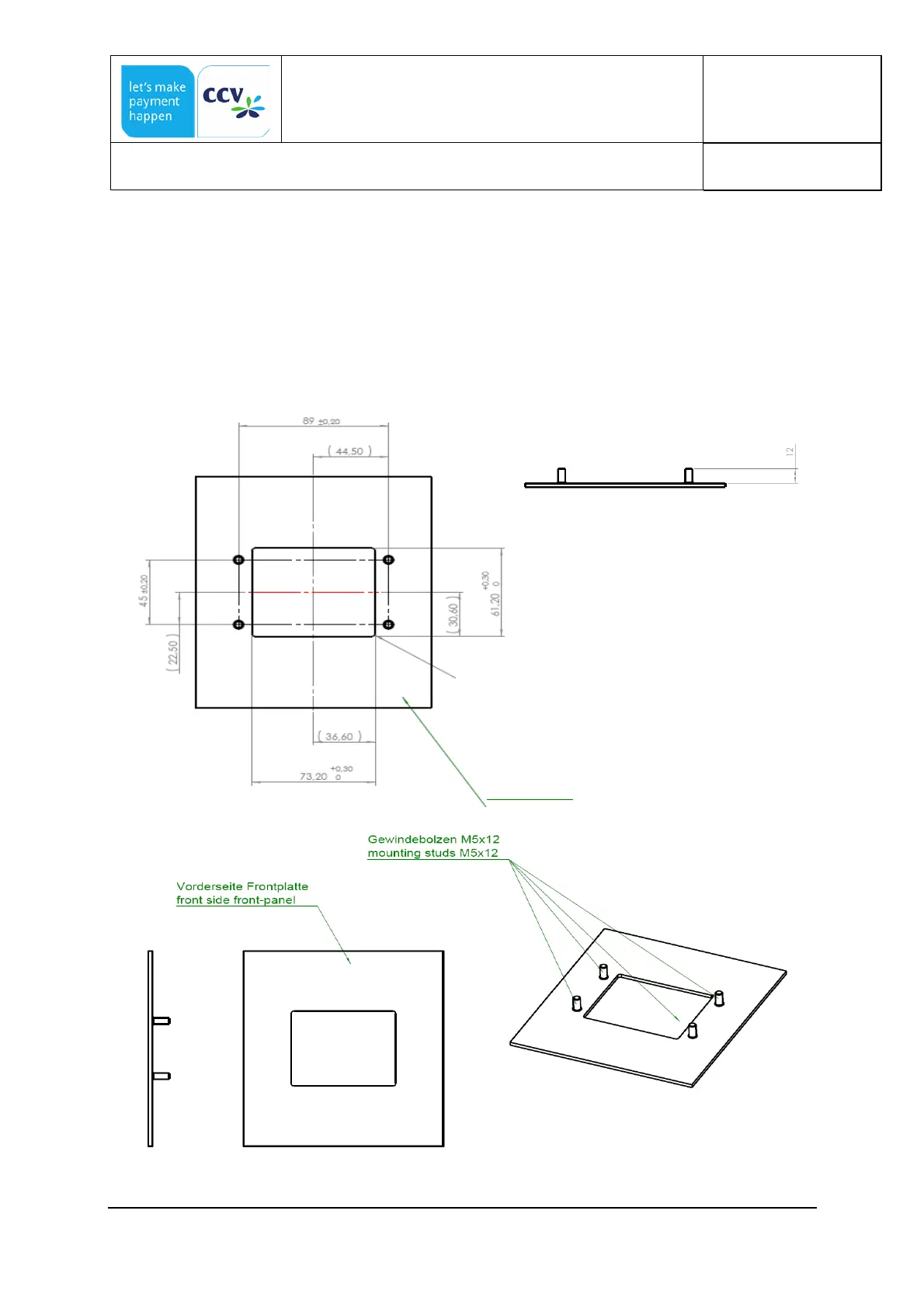
6.1.8 Dimensions of SCR-C front cut-out
Integration information
SCR-C: attachment with 4 mounting nuts: 0,8Nm +/-
0,2Nm
Rückseite Frontplatte
back side front-panel
R3 (4x)

Table of Contents

Related product manuals