EasyManua.ls Logo

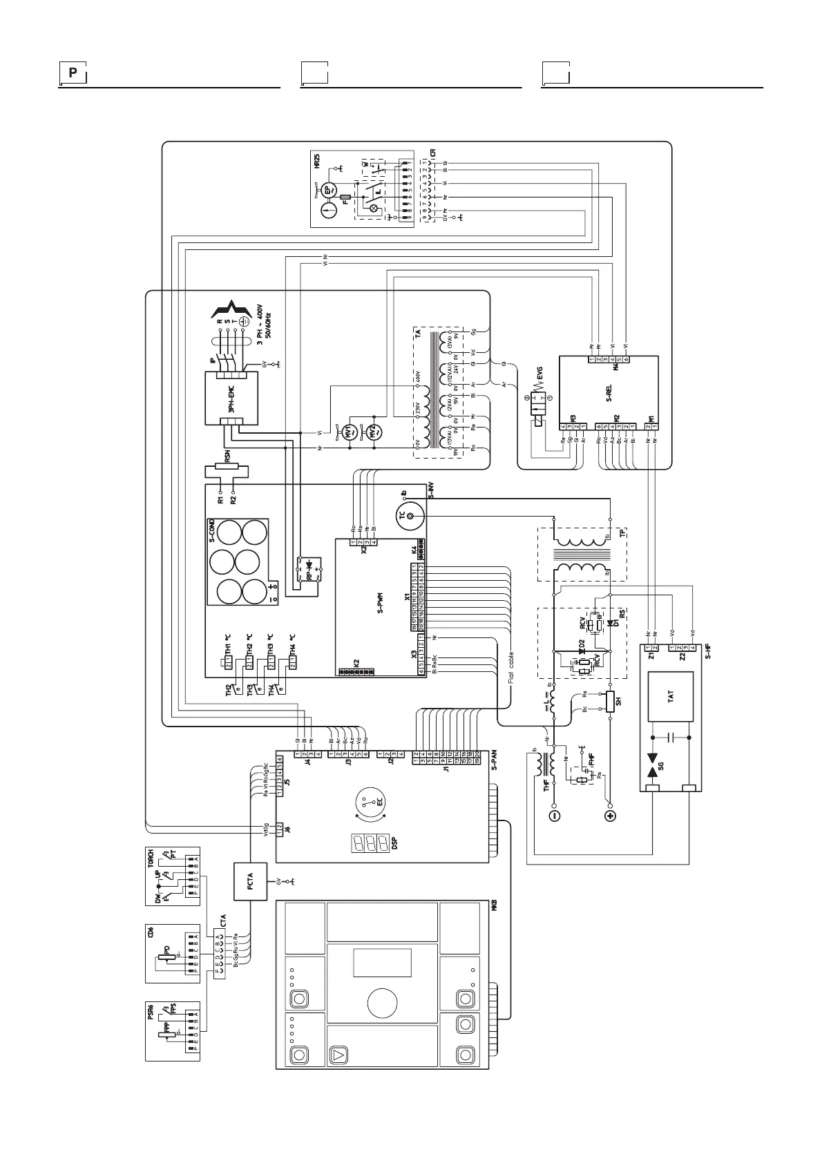
CEA MATRIX 250 HF - Elektiska Schema; Elektriske Skjema

CEA MATRIX 250 HF
Print Icon
To Next Page IconTo Next Page
To Next Page IconTo Next Page
To Previous Page IconTo Previous Page
To Previous Page IconTo Previous Page
Loading...
98
Esquema eléctrico Elektiska schema Elektriske skjema
S N
2101F501

Table of Contents

Related product manuals