EasyManua.ls Logo

Continental Fireplaces CB36PTR - Page 44

Continental Fireplaces CB36PTR
82 pages
Print Icon
To Next Page IconTo Next Page
To Next Page IconTo Next Page
To Previous Page IconTo Previous Page
To Previous Page IconTo Previous Page
Loading...
41
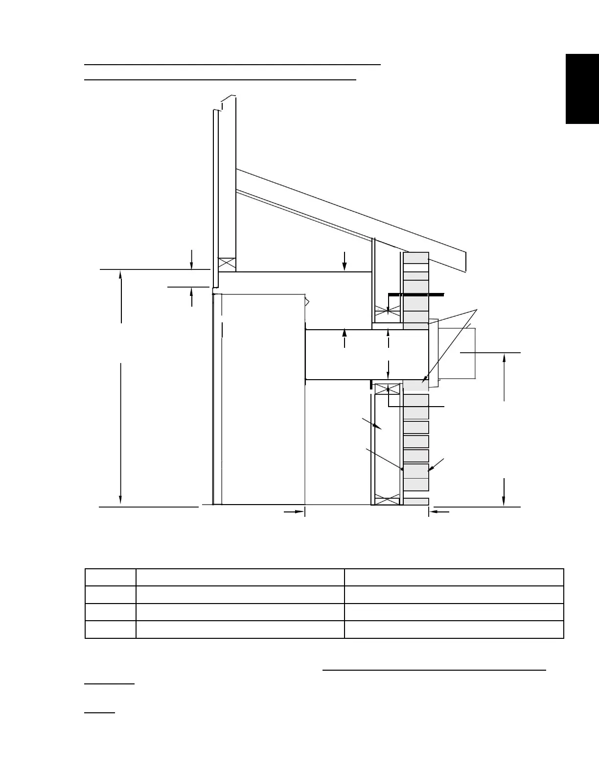
CB36 / CX36-1 MAXIMUM REAR VENT CLEARANCES
(EXAMPLE 2: EXTERIOR ALCOVE / DOGHOUSE)
EN
C
6 3/8"
41"
[162mm]
B
[104.1cm]
0” (0MM) IF
11 1/2"
3"
NON-COMBUSTIBLE
FINISHING IS USED
[292mm]
D
[76.2mm]
SUCH AS BRICK
AND STONE.
COMBUSTIBLE
1"
24"
[25mm]
NON-COMBUSTIBLE
[61cm]
BRICK
MINIMUM
PLUS RISE*
10"-20"
[254mm-50.8cm]
VENT RUN
Ref.
CB36
CX36-1
B
41" (104.1cm)
44" (111.2cm)
C
6 3/8" (162mm)
9 3/8" (238mm)
D
11 1/2" (292mm)
14 1/2" (36.8cm)
REAR EXIT ENCLOSURE
The appliance requires a minimum enclosure height of 41" (104.1cm) for the CB36 OR 44" (111.2cm) for
the CX36-1. For temperature requirements, the enclosure space around and above the appliance must be
left unobstructed.
NOTE: The vent shield is telescopic and must be adjusted to shield the full depth of the
combustible wall penetration.
* See "venting" section.
W415-1679 / D / 03.09.18

Table of Contents

Related product manuals