EasyManua.ls Logo

Danfoss FC 102 - Page 95

Danfoss FC 102
114 pages
Print Icon
To Next Page IconTo Next Page
To Next Page IconTo Next Page
To Previous Page IconTo Previous Page
To Previous Page IconTo Previous Page
Loading...
130BF657.10
168 (6.6)
18 (0.7)
168 (6.6)
1335 (52.5)
136 (5.4)
154 (6.1)
744 (29.3)
39 (1.5)
22 (0.9)
215 (8.5)
48 (1.9)
206
(8.1)
412
(16.2)
430 (16.9)
4X 457 (18.0)
464 (18.3)
1
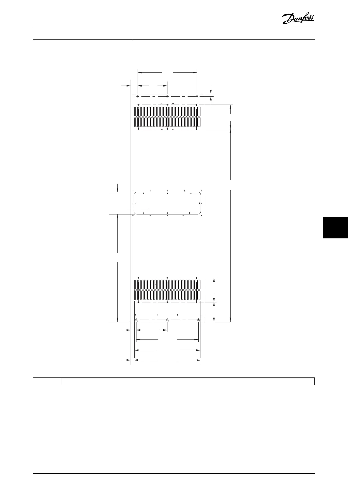
1 Heat sink access panel (optional)
Illustration 9.12 Back View of E3h
Specications Operating Guide
MG16O102 Danfoss A/S © 01/2017 All rights reserved. 93
9 9

Table of Contents

Other manuals for Danfoss FC 102

Related product manuals