EasyManua.ls Logo

Danfoss VLT AutomationDrive FC 300 - Page 39

Danfoss VLT AutomationDrive FC 300
169 pages
To Next Page IconTo Next Page
To Next Page IconTo Next Page
To Previous Page IconTo Previous Page
To Previous Page IconTo Previous Page
Loading...
1
2
3
4
5
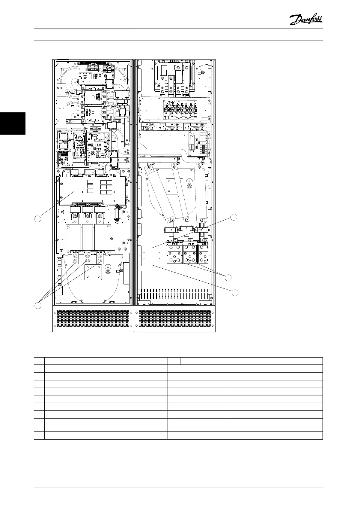
130BC210.11
Illustration 4.27 Frame Size E9
1)
RFI 4) Motor
2) Line U V W
R S T 96 97 98
L1 L2 L3 T1 T2 T3
3) Brake option 5) Load sharing option
-R +R -DC +DC
81 82 88 89
6) AUX Fan
100 101 102 103
L1 L2 L1 L2
Table 4.17
How to Install VLT Automation Low Harmonic Drive Operating Instructions
38 MG34O202 - VLT
®
is a registered Danfoss trademark
44

Table of Contents

Other manuals for Danfoss VLT AutomationDrive FC 300

Related product manuals