EasyManua.ls Logo

Danfoss VLT AutomationDrive FC 300 - Page 43

Danfoss VLT AutomationDrive FC 300
169 pages
Print Icon
To Next Page IconTo Next Page
To Next Page IconTo Next Page
To Previous Page IconTo Previous Page
To Previous Page IconTo Previous Page
Loading...
+DC 89
FASTENER TORQUE: M10 19Nm (14 FT -LB)
+DC 89
130BA860.10
1
5
4
3
2
8
10
9
FUSE
C J3
ONNECT
CH22 CH22 CH22
CTI25MB
FASTENER TORQUE: M10 19Nm (14 FT -LB)
CTI25MB
CH22 CH22 CH22
7
6
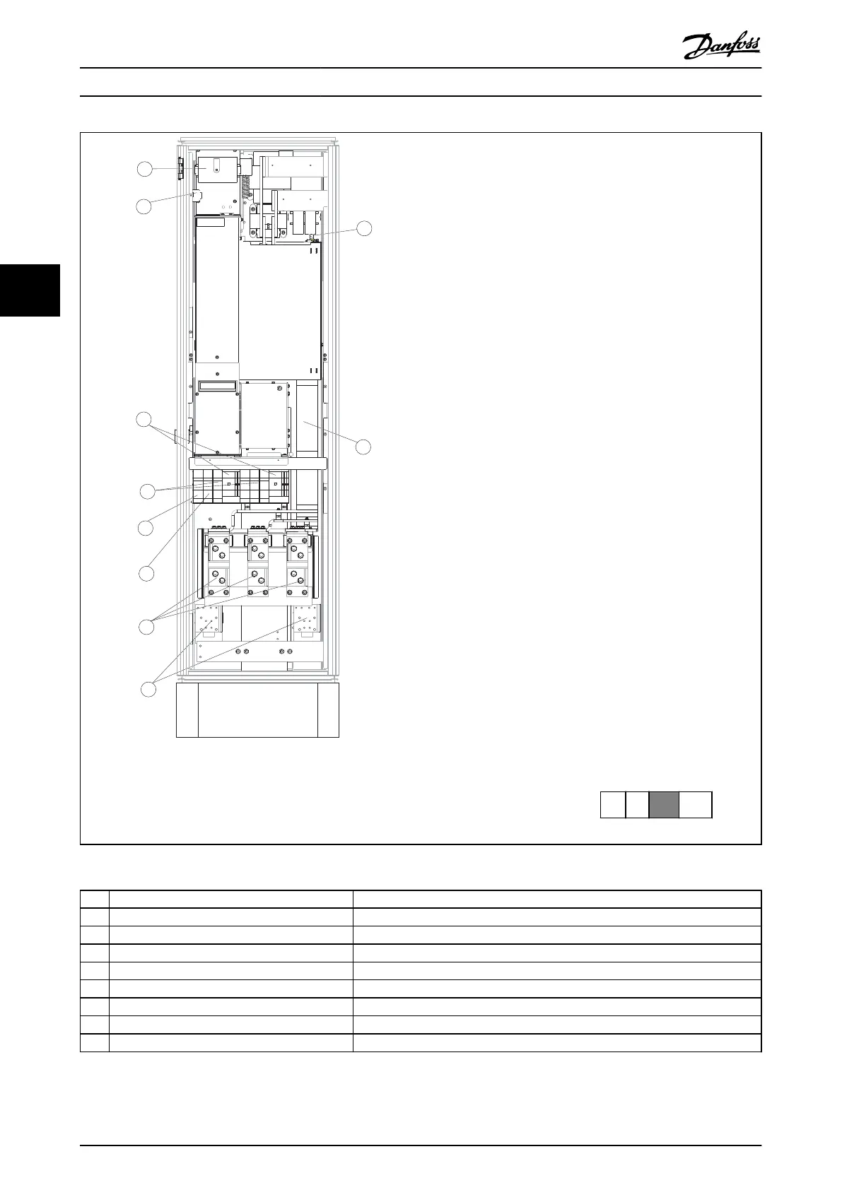
Illustration 4.29 Rectifier Cabinet, frame size F18
Section shown
Table 4.21
1)
24 V DC, 5 A 5) Loadsharing
T1 Output Taps -DC +DC
Temp Switch 88 89
106 104 105 6)
Control Transformer Fuses (2 or 4 pieces). See 4.6.14 Fuses for part numbers
2) Manual Motor Starters 7)
SMPS Fuse. See 4.6.14 Fuses for part numbers
3) 30 A Fuse Protected Power Terminals 8)
Manual Motor Controller fuses (3 or 6 pieces). See 4.6.14 Fuses for part numbers
4) Connection point to filter 9)
Line Fuses, F1 and F2 frame (3 pieces). See 4.6.14 Fuses for part numbers
R S T 10) 30 Amp Fuse Protected Power fuses
L1 L2 L3
Table 4.22
How to Install VLT Automation Low Harmonic Drive Operating Instructions
42 MG34O202 - VLT
®
is a registered Danfoss trademark
44

Table of Contents

Other manuals for Danfoss VLT AutomationDrive FC 300

Related product manuals