EasyManua.ls Logo

Datalogic DX8200A - Page 36

Datalogic DX8200A
97 pages
Print Icon
To Next Page IconTo Next Page
To Next Page IconTo Next Page
To Previous Page IconTo Previous Page
To Previous Page IconTo Previous Page
Loading...
DX8200A
2
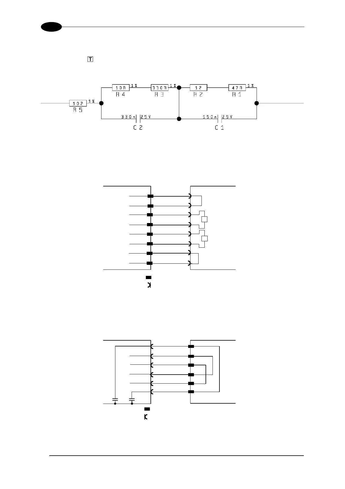
The following diagrams represent different network terminations using either the BTK-8102
Lonworks terminator or the BTK-8100 bus return. In Figure 21 the BTK-8102 terminator is
indicated by the
element, while the figure below shows its electrical circuit in details:
Figure 20 – BTK-8102 Electrical Circuit
The diagram below represents the termination of the double Lonworks line of a DX8200A
working as master by means of the BTK-8102.
Master
BTK-8102
= male connector
= female connector
9
7
8
A2
7
A2
A1
9
8
A1
LON A+
LON A-
VS
VS_I/O
GND
T
REF_I/O
11
10
11
10
LON B+
LON B-
T
15
15
Figure 21 – DX8200A Master Termination
The diagram below represents the Lonworks bus return of a DX8200A working as slave by
means of the BTK-8100.
Last Slave BTK-8100
= male connecto
r
= female connecto
r
9
8
1
LON A+
LON A-
9
8
11
10
LON B+
LON B-
11
10
1
3
3
Shields
Figure 22 – DX8200A Lonworks Bus Return
20

Table of Contents

Other manuals for Datalogic DX8200A

Related product manuals