EasyManua.ls Logo

Doosan DX22 - Overview; Overview and Specifications

Doosan DX22
208 pages
Print Icon
To Next Page IconTo Next Page
To Next Page IconTo Next Page
To Previous Page IconTo Previous Page
To Previous Page IconTo Previous Page
Loading...
6. Cooling System
89
Overview and Specifications
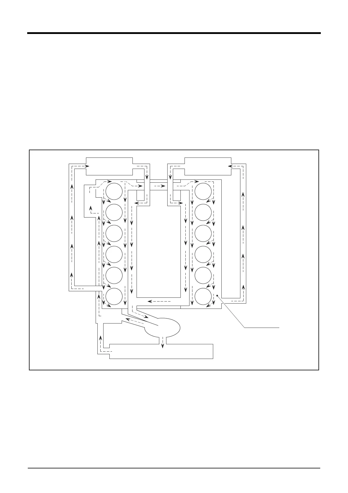
Overview
This engine is water-cooled. After coolant absorbs
combustion heat from the combustion chamber and heat
from engine oil, it releases the heat externally to ensure
normal engine operation.
In the cooling system, coolant supplied from the coolant
pump flows to the oil cooler through the coolant pipe to
absorb heat from oil. Then, as it passes through the coolant
jacket of the cylinder block and the cooling passage of the
cylinder head, it absorbs combustion heat.
Then, this coolant is conveyed to the thermostat through the
coolant pipe. If the coolant temperature is lower than the
valve opening temperature of the thermostat, it is returned to
the coolant pump. Otherwise, it flows to the radiator. In the
radiator, the heat absorbed by the coolant is released and
the coolant returns to the coolant pump.
EF8OM017
4
5
6
3
2
1
12
11
10
9
8
7
Cylinder head
Cylinder head
Oil
cooler
Thermostat
Coolant
pump
Radiator
Cylinder block

Table of Contents

Related product manuals