EasyManua.ls Logo

Edgewater Networks 388CC - Page 283

Edgewater Networks 388CC
395 pages
Print Icon
To Next Page IconTo Next Page
To Next Page IconTo Next Page
To Previous Page IconTo Previous Page
To Previous Page IconTo Previous Page
Loading...
SEASTAR and BAYSTAR Hydraulic Steering Systems
3-15
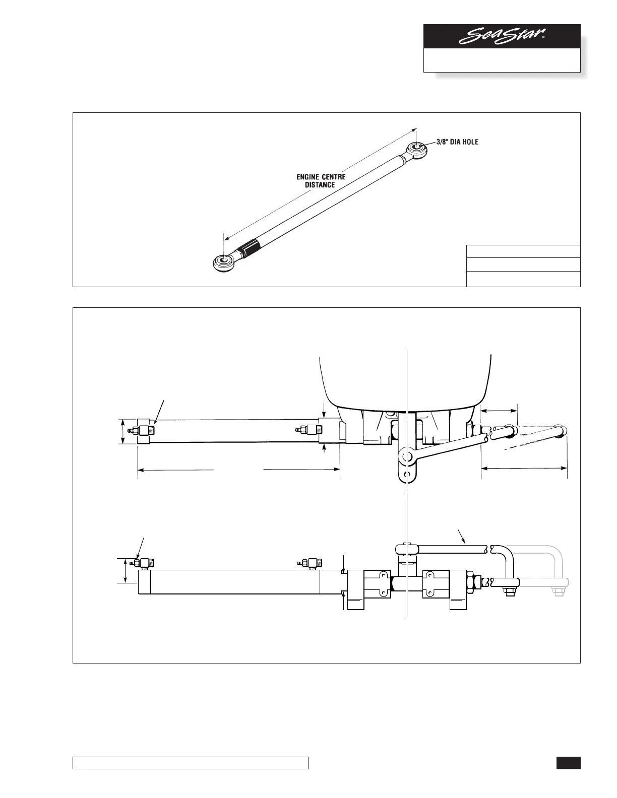
General Dimensions
LINK ARM SUPPLIED BY
ENGINE MANUFACTURER
3/8" COMPRESSION FITTING
13" (330mm)
9" (229mm) AT
FULL EXTENSION
0.75" (19mm) AT
FULL RETRACTION
1.5" DIA
(38mm)
1.5" (38mm)
1-5/16" ACROSS
WRENCH FLATS
BLEED NIPPLE
1.74"
(45mm)
Tie Bar for Side Mount Cylinders Part# HO5009
ENGINE CENTRE DISTANCE
MAXIMUM: 36" (914mm)
MINIMUM: 26" (660mm)
PART# HC5370
OUTBOARD–SIDE MOUNT

Table of Contents

Related product manuals