EasyManua.ls Logo

Edgewater Networks 388CC - Dimensions; Electric; Hydraulic

Edgewater Networks 388CC
395 pages
Print Icon
To Next Page IconTo Next Page
To Next Page IconTo Next Page
To Previous Page IconTo Previous Page
To Previous Page IconTo Previous Page
Loading...
24
Electric/Hydraulic TT Thruster 140 - 300
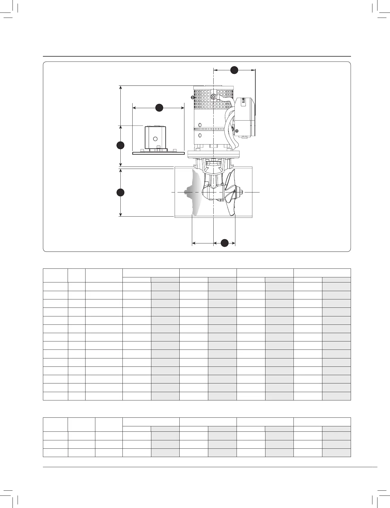
7. Dimensions
7.1 Elect r ic
A
D
B
C
A
Fig. 7.1.1
Model Voltage Power
ABCD
mm in mm in mm in mm in
140TT 2.0 12 V 2.0 kW (2.7 hp) 123 4
5
/
6
235 9
1
/
4
140 5
1
/
2
73 2
7
/
8
140TT 2.2 12 V 2.2 kW (3.0 hp) 123 4
5
/
6
211 8
5
/
16
140 5
1
/
2
73 2
7
/
8
185TT 3.0 12 V 3.0 kW (4.0 hp) 130 5
1
/
8
271 10
21
/
32
185 7
9
/
32
85 3
11
/
32
185TT 3.0 24 V 3.0 kW (4.0 hp) 130 5
1
/
8
271 10
21
/
32
185 7
9
/
32
85 3
11
/
32
185TT 4.0 12 V 4.0 kW (5.4 hp) 148 5
13
/
16
294 11
9
/
16
185 7
9
/
32
85 3
11
/
32
185TT 4.0 24 V 4.0 kW (5.4 hp) 148 5
13
/
16
294 11
9
/
16
185 7
9
/
32
85 3
11
/
32
185TT 5.0 12 V 5.0 kW (6.7 hp) 162 6
3
/
8
316 12
7
/
16
185 7
9
/
32
85 3
11
/
32
185TT 5.0 24 V 5.0 kW (6.7 hp) 162 6
3
/
8
316 12
7
/
16
185 7
9
/
32
85 3
11
/
32
185TT 6.0 12 V 6.0 kW (8.0 hp) 173 6
13
/
16
316 12
7
/
16
185 7
9
/
32
85 3
11
/
32
185TT 6.0 24 V 6.0 kW (8.0 hp) 173 6
13
/
16
316 12
7
/
16
185 7
9
/
32
85 3
11
/
32
250TT 8.0 24 V 8.0 kW (10.8 hp) 165 6
1
/
2
405 15
15
/
16
250 9
27
/
32
238 9
3
/
8
250TT 9.6 48 V 9.6 kW (13.0 hp) 165 6
1
/
2
405 15
15
/
16
250 9
27
/
32
238 9
3
/
8
300TT 10.8 24 V 10.8 kW (14.5 hp) 203 8 450 17
23
/
32
300 11
13
/
16
320 12
19
/
32
300TT 15.0 48 V 15.0 kW (20 hp) 203 8 450 17
23
/
32
300 11
13
/
16
320 12
19
/
32
Model kW hp
ABCD
mm in mm in mm in mm in
185TTH 7 10 200 7
7
/
8
202 7
15
/
16
185 7
9
/
32
83 3
9
/
32
250TTH 15 20 258 10
5
/
32
234 9
7
/
32
250 9
27
/
32
238 9
3
/
8
300TTH 22.5 30 258 10
5
/
32
256 10
1
/
16
300 11
13
/
16
320 12
19
/
32
7.2 Hydraulic

Table of Contents

Related product manuals