EasyManua.ls Logo

Eliwell EWCM 4150 - CONNECTION DIFFERENCES between EWCM412;415;418 and EWCM4120;4150;4180

Eliwell EWCM 4150
75 pages
Print Icon
To Next Page IconTo Next Page
To Next Page IconTo Next Page
To Previous Page IconTo Previous Page
To Previous Page IconTo Previous Page
Loading...
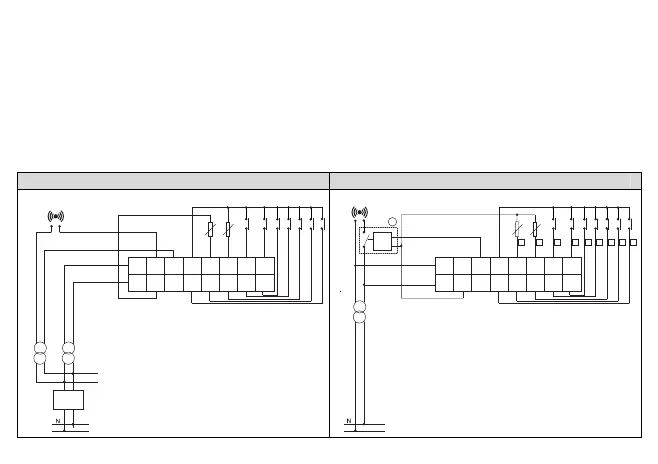
CONNECTION DIFFERENCES BETWEEN EWCM412/415/418 and EWCM4120/4150/4180
The main differences between EWCM412/415/418 and EWCM4120/4150/4180 are listed below:
The terminals of connectors EWCM412/415/418 are different from those of EWCM4120/4150/4180.
The alarm output on EWCM412 (12-24Va max 500mA output for use with 12Va insulated from power supply of
device) is replaced with an open collector output (with parameter configurable function) for use with 12Vc.
PLEASE NOTE: the terminals of the connector, to be used for this output, do not correspond between
EWCM412 and EWCM4120 (see diagram below).
The relays of EWCM4120/4150/4180 do not have a single common contact as on EWCM412/415/418; output
DO4 is separate from the other outputs (DO1, DO2 and DO3)
Connection EWCM412 Connection EWCM4120
L
DO5 GND AI4 AI3
DI7 DI6
12Vac 5Vac
AO1 DI5 DI4 DI3 DI2 DI112Vac 12Vdc
AI2 AI1
16
3
1 4
2
5
6
78
9
12 Vdc 35mA max.
EWCM 4120
L
GND GND ST2 ST1 ID7 ID612Vac ALL
TK1 ID5 ID4 ID3 ID2 ID112Vac
12Vdc
A
B
T2 T1
EWCM412
13

Related product manuals