EasyManua.ls Logo

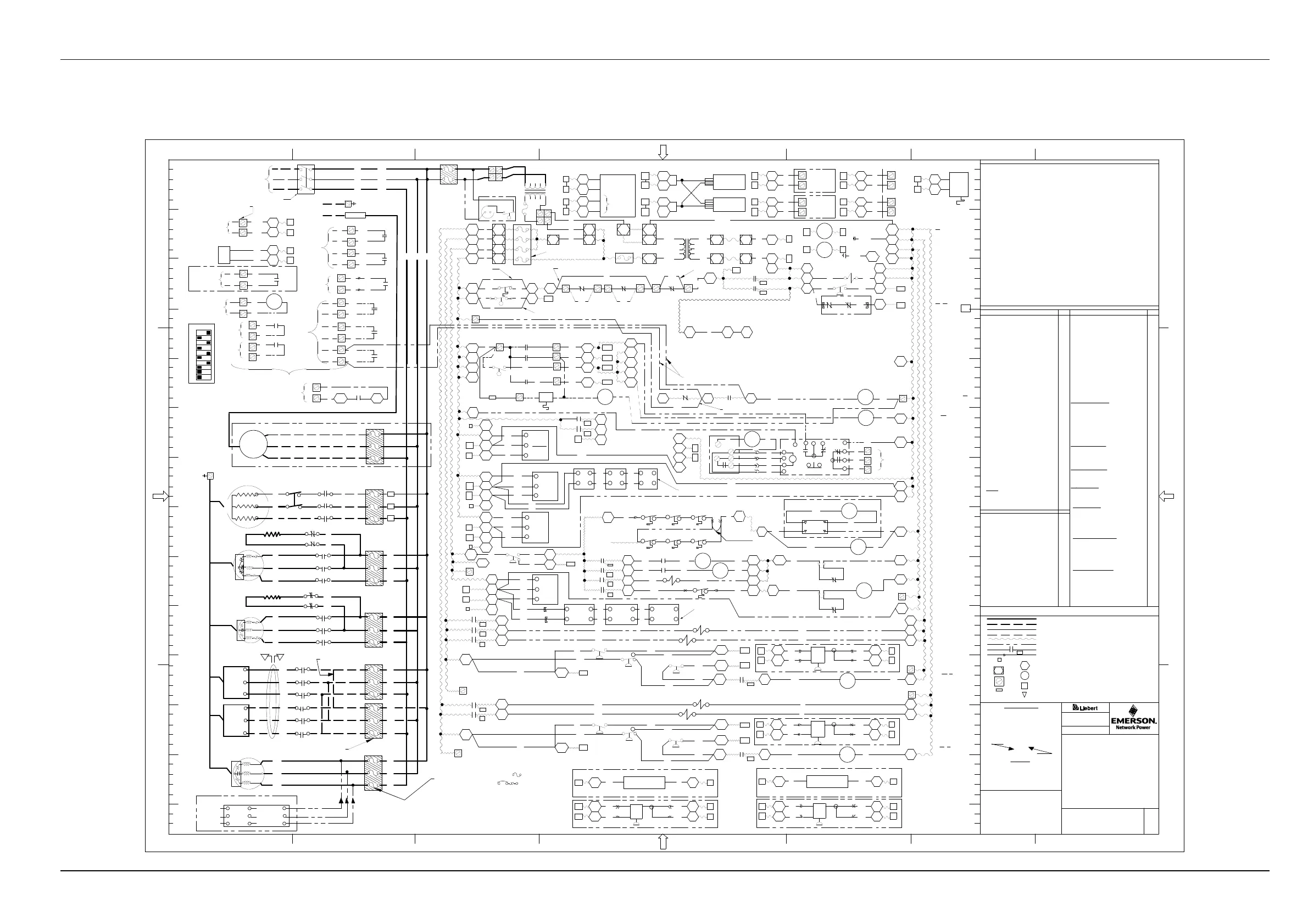
Emerson Liebert PEX+ Series - Appendix 1 Circuit Diagram

Emerson Liebert PEX+ Series
92 pages
Print Icon
To Next Page IconTo Next Page
To Next Page IconTo Next Page
To Previous Page IconTo Previous Page
To Previous Page IconTo Previous Page
Loading...
Appendix 1 Circuit Diagram 75
Liebert. PEX+Series Precision Air Conditioner User Manual
Appendix 1 Circuit Diagram
38-1
DLT2
THIS DOCUMENT CONTAINS CONFIDENTIAL AND
PROPRIETARY INFORMATION OF LIEBERT
CORPORATION AND NEITHER IT NOR THE
INFORMATION CONTAINED THEREIN SHALL BE
DISCLOSED TO OTHERS OR DUPLICATED OR
USED WITHOUT THE EXPRESS WRITTEN
CONSENT OF LIEBERT CORPORATION
WIRE COLOR CODE
OR - ORANGE
R - RED
BR - BROWN
P - PURPLE
GN - GREEN
Y - YELLOW
BL - BLUE
BK - BLACK
W - WHITE
INSULATION COLOR
GN / Y
TRACER COLOR
1050 DEARBORN DRIVE
P.O. BOX 29186
COLUMBUS, OHIO 43229
CAGE CODE
TITLE
DRAWING NO REV
55455
WIRING LEGEND
FACTORY SUPPLIED LINE VOLTAGE WIRING
FIELD SUPPLIED LINE VOLTAGE WIRING
FACTORY SUPPLIED 24 VOLT WIRING
FIELD SUPPLIED 24 VOLT WIRING
CONTROL BOARD INTERNAL WIRING - 24 VOLT MAX
WIRING AND DEVICES INCLUDED IN OPTIONS
ELECTRONIC SWITCH (TRIAC) Q1-Q18
INLINE QUICK DISCONNECT
OPEN CONTROL BOARD CONNECTION
PLUG CONNECTION ON CONTROL BOARD
PLUG CONNECTION ON FUSE BOARD
TERMINAL BLOCK CONNECTION ON CONTROL BOARD
TERMINAL STRIP CONNECTION FOR FIELD WIRING
CIRCUIT CONNECTION TO ELECTRONICS
TRIAC GATE CONNECTION
GROUND CURRENT DETECTOR CIRCUIT
WIRING DIAGRAM
INFRARED HUMIDIFIER
ROR
OR R
R
R
R
R
R
41-3
41-4 45-4
UNIT DISPLAY
UNIT ALARM
P64 WIRES
INCLUDED
ON LARGE
DISPLAY
ONLY
LINE
VOLTAGE
3 PHASE
SUPPLY
SEE UNIT NAMEPLATE
FOR MAIN SUPPLY
WIRE SIZING
GN/Y
EARTH GROUND
CONNECTION
L1 BK
L2
L3
BK
BK
INFRARED HUMIDIFIER
BR
BK
GY
1H1
2H1
3H1
1C1
2C1
3C1
L1
L2
L3
L1
L2
L3
COMPRESSOR NO.1
BL BR
BLBR
R
HTS
HWA
U20
RSD3 RSD2 RSD137C 38C 37B 38B 37 38
RR
REMOVE FOR EXTRA RSD TERMINALS
SEE NOTE 6
U23
Q6
Q5
BL BR
RR
U21
U22
R3
K3K3
CPAR
LQR
38-3
40-2
40-4
40-6
40-7
R
R
R
R
P
P
R
RAD1
RAD2
50
51
55
56
U16
U17
U18
U19
40-8
38-2BR
R
P
CPSS
24
R
R
HMV
FC
T6
T1
24V
PCB CONTROL FUSES
SEE NOTE 6
OR
P
OR
SEE
NOTES
1 & 7
R
66-1
66-6
64-1
64-8
E124-1
E2
E3
E5
43-141-1
41-2 43-2
4-1
4-2
4-3
4-4
45-2 45-1
4-1
4-2
4-3
4-4
R
R
40-3
40-5
39-2
8-5
39-3
R
39-4 35-3
40-9
36-1
35-4
40-10
36-2
40-11
36-6
40-13 36-3
36-8
8-6
40-1
40-12
39-1
8-7
36-15 36-13 36-14
8-4
8-3
8-2
8-1
OR
22-5
22-2
22-4
52-4
52-1
52-2
52-3
53-1
54-1
52-5
53-4
54-4
R
R
RS1 RS2 RS3
BR
24DH 24DG
R
34-12
R
24H 24G
R
R U15
R
R
RH1
RH2
DHV
H
R
R
BR
BR
BL
BL
36-5
36-7
34-3
34-1 34-2
34-10
35-5
51-4
34-7
34-5
34-9
34-11
36-4
34-4
34-6
34-8
35-1 R35-2 35-6
35-7
51-1
51-2
51-3
51-5
HGBP2/DSV2
Q12
Q13
BR
BR BL
HGBP1/DSV1
U29
U28
BL
Q14
C1 RR
32-1
33-1
32-2
33-2
32-4
32-11
32-9
32-8
11-1
11-3
11-2
11-4
32-6 32-10
R
Q15
Q8
Q9
BR
BR BL
LLSV2
U26
U25
BL
Q10
C2
R
R
36-9
32-3
33-4 33-5
36-10
32-5
32-13
33-9
33-8
11-5
11-7
11-6
11-8
32-7 32-12
33-3
1C2
2C2
3C2
L1
L2
L3
COMPRESSOR NO.2
REHEAT 1
REHEAT 2
(OPTIONAL)
2RH1
3RH1
1RH2
2RH2
3RH2
L1
L2
L3
1RH1
MAIN FAN 1,2
L1
L2
L3
LLSV1
ELECTRICAL REHEAT
L1L2L3
OR CIRCUIT BREAKERS
R
SEE NOTE 6
24-2
24,24
15,18,20 12,23
19,23
55,57,58
52,53,54
34,35,36
10,33,36,46,
8,38,39,40,
41,42,62
12
SHADED AREAS MAY BE FUSES
45-3
42
41
ANALOG
INPUTS
#1
BK
R
67-1
67-6
TH/HU
TEMP/
HUMID
SENSORS
12-1
12-2
44
43
ANALOG
INPUTS
#2
BK
R12-5
12-6
E-1
GN/Y
K3
61-1
INTELLISLOT 1
INTELLISLOT 2
PRIMARY P65 CONNECTION
61-8
65-1
65-4
U2433-7
HP2
BR
LP2
U27
BL
33-6
HP1
BR
LP1
1BR
R
R
R
21
CT
L1
L2
L3
BRR
OPTIONAL REHEAT 2 RS4 RS5 RS6 SEE NOTE 6
42
41
R
R13-1
13-2
44
43
R
R13-5
13-6
54-2
54-3
53-5
54-5
OPTIONAL WITH GCD
24,39,40,41
CUSTOMER CONNECTIONS, ALSO SEE L INES 2,3,5,6,13,18,19,20,22,28 & 29
PHASE FAULT RELAY CONNECTS TO
MF1 ON 1 BAY UNITS
MF2 ON 2 BAY UNITS
MF3 ON 3 BAY UNITS
EARTH GROUND
CONNECTION
NEUTRAL
EARTH
SEE
NOTE
9
P
P
P
P
MFAS
P
P
2CPAR
BR
BR
BR
BR
3R3
R
R
2R3
R
R
1R3
P
P
2LQR
COMMON
ALARM
CONNECTION
REMOTE
LIQUITECT
INDICATOR
" OPTIONAL "
ALL FIELD WIRING - SEE NOTE 1
SEE
NOTE
8
R
R
65-1
65-2
OR
W/ORTO
MONITORING
SYSTEM
97
96
95
94
76
75
58
59
83
82
78
77
85
84
89
88
81
80
SEE
NOTE
10
SEE
NOTE
7
EM1
R
R
C1
R
R
C2
70
71
70A
71A
HEAT
REJECTION
DEVICE
CONNECTION
FTS
7-2
7-1BL
BR
SDT
19
AS - AIR SAFETY SWITCH
C1 - COMPRESSOR CONTACTOR 1
C2 - COMPRESSOR CONTACTOR 2
CCH1 - CRANKCASE HEATER NO.1
CCH2 - CRANKCASE HEATER NO.2
DHV - DEHUM VALVE
DLT1 - DISCHARGE LINE THERMOSTAT 1
DLT2 - DISCHARGE LINE THERMOSTAT 2
FC - FILTER CLOG SWITCH
HGBP1 - HOT GAS BYPASS
(SINGLE COMP. MODEL ONLY)
HP1 - HIGH PRESSURE SWITCH NO.1
HP2 - HIGH PRESSURE SWITCH NO.2
HU - HUMIDITY SENSOR
K3 - COMMON ALARM RELAY 24V, 1.0A
MAX CONTACT LOAD
LLSV1 - LIQUID LINE SOLENOID 1
LLSV2 - LIQUID LINE SOLENOID 2
LP1 - LOW PRESSURE SWITCH NO. 1
LP2 - LOW PRESSURE SWITCH NO. 2
Q1 - REHEAT STAGE 1 TRIAC
Q2 - REHEAT STAGE 2 TRIAC
Q3 -
DE HUMIDIFICATION VALVE
Q4 - HUMIDIFICATION TRIAC
Q5 - MAIN FAN TRIAC
Q6 - HUMIDIFIER MAKE-UP TRIAC
Q8 - LIQUID LINE SOLENOID NO.2 TRIAC
Q9 - HOT GAS BYPASS 2 TRIAC
Q10 - COMPRESSOR NO.2 TRIAC
Q12 - LIQUID LINE SOLENOID NO.1TRIAC
Q13 - HOT GAS BYPASS 1 TRIAC
Q14 - COMPRESSOR NO.1 TRIAC
Q15 - NOT USED
Q17 - NOT USED
Q18 - NOT USED
TH - TEMPERATURE SENSOR
T1 - UNIT CONTROL TRANSFORMER
T6 - ISOLATION TRANSFORMER
U1-U30 - OPTO ISOLATORS
WUF - WATER UNDER FLOOR
INFRARED HUMIDIFIER
H - HUMIDIFIER CONTACTOR
HMV - HUMIDIFIER MAKE-UP VALVE
HS3 - MANUAL RESET HUMIDIFIER SAFETY
(UNDER PAN)
HWA - HIGH WATER ALARM
ELECTRIC REHEAT 1
BR - BACKUP REHEAT RELAY
RH1 - REHEAT STAGE 1 CONTACTOR
RS1,2,3 - REHEAT 1 SAFETY STATS
DITITAL SCROLL
DSV1 - DIGITAL SCROLL SOLENOID VALVE 1
DSV2 - DIGITAL SCROLL SOLENOID VALVE 2
CHILLED WATER
ACT1CWCV - ACTUATOR 1 CHILLED
WATER CONTROL VALVE
ACT2CWCV - ACTUATOR 2 CHILLED
WATER CONTROL VALVE
GLYCOL/WATER COOLED
ACT1PHECV - ACTUATOR 1 PLATE HEAT
EXCHANGER CONTROL VALVE
ACT2PHECV - ACTUATOR 2 PLATE HEAT
EXCHANGER CONTROL VALVE
EC FAN
ECF - EC FAN
KL2 - EC FAN ALARM TERMINALS
KL3 - EC FAN TERMINALS
DUAL COOL/FREE COOL
ACT1ECOCV - ACTUATOR 1 ECOIL
WATER CONTROL VALVE
FTS - FLUID TEMPERATURE SENSOR
38
60
52
29
30
41
49
52
14
56
58
50
2
7
55
47
58
50
39
40
41
42
14
13
47
48
52
55
56
60
46
28
27
2
3
9
25
42
13
45
14
39
40
34
49
56
32
37
34
38
43
16
43
30
9
NOTES:
LINE LINESTANDARD DEVICES
NOMENCLATURE
1. ALL FIELD WIRING TO BE PER LOCAL CODES. USE COPPER CONDUCTORS ONLY.
2. SEE INSTALLATION AND USER MANUAL(S).
3. K11 RELAY CONTACTS HAVE SEPARATE TERMINALS MARKDE 72 AND 73 ON DUAL COOL .
4. FAN MOTOR OVERLOAD SYSTEM DEPENDENT ON FAN MOTOR MANUFACTURER, CONTROL
VOLTAGE OVERLOAD SYSTEM SHOWN IN SHADED AREAS, LINE VOLTAGE OVERLOAD SYSTEM
SHOWN IN BOXED AREA.
5. THREE PHASE MOTORS PROTECTED FOR PRIMARY SINGLE PHASING CONDITION.
6. JUMPER TO BE REMOVED WHEN OPTIONAL COMPONENT IS USED.
7. OPTIONAL SMOKE DETECTOR: TERMINALS SUPPLIED IN FIELD WIRING COMPARTMENT FOR
REMOTE INDICATION. FIELD TO CONNECT 24V MAX.
8. OPTIONAL MAIN FAN AUXILIARY SIDE SWITCH: TERMINALS LOCATED IN FIELD WIRING
COMPARTMENT FOR REMOTE INDICATION. FIELD TO CONNECT 24V MAX.
9. OPTIONAL EMERGENCY POWER LOCKOUT OF REHEAT AND/OR HUMIDIFIER: CONNECTIONS
PROVIDED FOR REMOTE 24V AC SOURCE.
10. OPTIONAL CONDENSATE PUMP ALARM RELAY TERMINALS LOCATED IN WIRING COMPARTMENT
FOR REMOTE INDICATION.
11. 5MF CONTACTS NOT USED WITH EC FAN OPTION FOR MAIN FAN OVERLOAD. USE KL2 CONTACT
WITHIN EC FAN. OL1,2,3 USED WITH FC OPTION, MF1MF2 & MF3 ARE CONTACTORS DRIVEN
DIRECTLY FROM OL1,2,3.
12. ON UNITS WITH NO INTELLISLOT, CONNECT PLUGS 65-1 AND 65-2 TO ALTERNATE CONNECTIONS
AT SCREW TERMINALS 77 AND 78.
13. REMOTE CONDENSER POWER CONTACTOR OPTIONAL FOR AIR COOLED SYSTEMS
14. "WARNING" LEVEL ALARM CONNECTION.
15. CONTROL BOARD DIP SWITCH(SW2), ENSURE THAT 135 & 7 ARE IN "ON" POSITION AND
SWITCHES; 2, 4, 6, 8, 9 & 10 ARE IN THE "OFF"
CP - CONDENSATE PUMP
CPAR - CONDENSATE PUMP ALARM RELAY
CPSS - CONDENSATE PUMP SAFETY SWITCH
CT - CURRENT TRANSFORMER
(GROUND CURRENT DETECTOR)
EM1 - EMERGENCY POWER LOCKOUT
RELAY (DEFAULT RAD1)
GCD - GROUND CURRENT DETECTOR
HPT1 - HIGH PRESSURE TRANSDUCER 1
HPT2 - HIGH PRESSURE TRANSDUCER 2
HTS - HIGH TEMPERATURE STAT
LPT1 - LOW PRESSURE TRANSDUCER 1
LPT2 - LOW PRESSURE TRANSDUCER 2
LQR - LIQUITECT SHUTDOWN RELAY
MFAS - MAIN FAN AUXILIARY SIDE SWITCH
R3 - EXTRA COMMON ALARM 24V, 3.0A MAX
CONTACT LOAD
RAD1 - 4 REMOTE ALARM DEVICE
(75VA MIN. RATING)
RSD - REMOTE SHUTDOWN DEVICE BY
OTHERS (75VA MIN RATING)
SD - SMOKE DETECTOR
SDC - SMOKE DETECTOR CONTROL
SDT - SMOKE DETECTOR TROUBLE RELAY
ELECTRIC REHEAT 2
RH2 - REHEAT STAGE 2 CONTACTOR
RS4,5,6 - REHEAT 2 SAFETY STATS
5
26
20
48
14
34
65
65
13
50
58
23
17
24
18
13
28
28
27
41
37
OPTIONAL DEVICES LINE
W
BR
BL
REMOVE WIRES WHEN
R3 IS PRESENT
22-1
22-3
22-6
Q18
Q17
1
3
ACT1
PHECV
W
BR
BL
2
3
ACT2
PHECV
2
T5
T2
T4
T3
GN/Y
HS3
15,61,62,63
15,20,61,62,63
1
53-2
53-3
R
R
BR
R
R
ATTENTION
WIRING COLOUR CODES ARE
FOR GUIDANCE ONLY
WIRE ID MARKINGS TAKE PRECEDENCE
(EM1)
G4
G3
G2
G5
1
SW2
(SEE NOTE 15)
2
3
4
5
6
7
8
9
10
ONOFF
3BR
R
3P RC1,2
OPTIONAL 3 PHASE REMOTE CONDENSE R 1, 2
TO 38B
TO 37B TO 24
TO 51
OPTIONAL PHASE FAULT RELAY
18
15 25
26
L1
L2
L3
15,19,
61,62,63
GN
W
BK
GY
12-1
12-3
12-2
12-4
OPTIONAL
12-5
12-7
12-6
12-8
HPT1
WUF
DLT1
W
BR
BL
1
3
2
FOR 2 BAY & 3 BAY UNITS
SEPERATE CB FOR REHEAT 2
FACTORY MOUNTED MAIN UNIT SWITCH
ALTERNATE P65 CONNECTION
SEE NOTE 12
R
3
2
R
R
R
R
BKR
6
5
1
SD
91
92
93R
R
R
91
92
93
G590
24
505
RESET
SDC
1
2
3
4
SDT
CP
R
R
BR
BL
BL
BL
BL
BL
BR
W
W
BR
BR
BR
R
R
R
R
BK
12345678
60
55
50
45
40
35
30
25
20
15
10
5 5
10
15
20
25
30
35
40
45
50
55
60
D
12345678
65 65
C
B
A
D
C
B
A
ECOCV
ACT1
BR
2 8
ECF1
2 8
ECF2
2 8
ECF3
3 7 3 7 3 7
(KL3) (KL3) (KL3)
BR
BL BL
BR BR
BL
2
3
1
BL
BR
W
CWCV
ACT 1
HPT2
OPTIONAL
GY
BK
W
GN
LPT1
OPTIONAL
GY
BK
W
GN
LPT2
OPTIONAL
GY
BK
W
GN
CWCV
ACT2
2 8
ECF1
2 8
ECF2
2 8
ECF3
3 7 3 7 3 7
(KL3) (KL3) (KL3)
BL
BR BR
BL
BL
BR
SEE NOTE 16
SEE NOTE 16
16. EC FAN CONNECTION, TO PLUG P51 ON DX/DUAL COOL/FREE COOL UNIT,
TO P53 ON CHILLED WATER UNIT.
GY
BK
BR
GY
BK
BR
GY
BK
BR
GY
BK
BR
GY
BK
BR
47,49,54
42,45
R R13-3 13-4
OPTIONAL
73
72
SEE
NOTE
3 R
R
33-1133-10
R R13-5 13-6
OPTIONAL
DIGITAL SCROLL
THERMISTOR 2
DIGITAL SCROLL
THERMISTOR 1
K11 24
R
R
2BR
24A
1.2KΩ
RESISTORK11
E4
A03
F2900501
B
1EM1
2EM1
HS1
HS1-3
HS1-2
HS1-4
HS1-1
HL3
HL1
HL2
HL3
HL1
HL2
HL2
HS1 - AUTO RESET TEMPERATURE 41
SAFETY SWITCH
Q
CCH1
BK
4C1
5C1
BK
CCH2
BK
4C2
5C2
BK
ECF1 ECF2,3
(KL2) (KL2)
EC FAN OPTION
R
SEE NOTE 11
OPTIONAL DEVICES
WIRING COLOUR ARE FOR REFERENCE ONLY
THE OBJECT IS THE STANDARD
R
INCLUDED WITH R3
GCD
Q1
Q2
Q3
Q4
AS
FOR 1 BAY UNITS
REHEAT 2 USES CB1 OF REHEAT 1
CBRH2 NOT FITTED

Table of Contents

Related product manuals