EasyManua.ls Logo

Ferroli RFA - Page 44

Ferroli RFA
68 pages
Print Icon
To Next Page IconTo Next Page
To Next Page IconTo Next Page
To Previous Page IconTo Previous Page
To Previous Page IconTo Previous Page
Loading...
44
Q.E.
2
1
3
4
5
245
571 436 06
446195
2735930
465465
163
515
Q.E.
2
1
3
4
5
474
268
29001200
334
600 600
461 007 74
627193
35.1 - 45.1 - 55.1
Standard
Maggiorato
Q.E.
4
2
1
3
5
29001200
600 600
350
289
852
341 787 99
503347
70.2 - 90.2 - 110.2
Standard
70.2 - 90.2 - 110.2
Maggiorato
140.2 - 180.2 - 220.2
Standard
140.2 - 180.2 - 220.2
Maggiorato
2
1
3
2
3
1
4
4
5
5
5
5
2
3
1
1
2
3
4
4
627193
164 700 47
1284 700 47
334
474
1594
267,5
1200
600 600
3700
600 600
1200 3700
503347
258
1379
289
300
144 787 98
1265 787 98
Q.E.
Q.E.
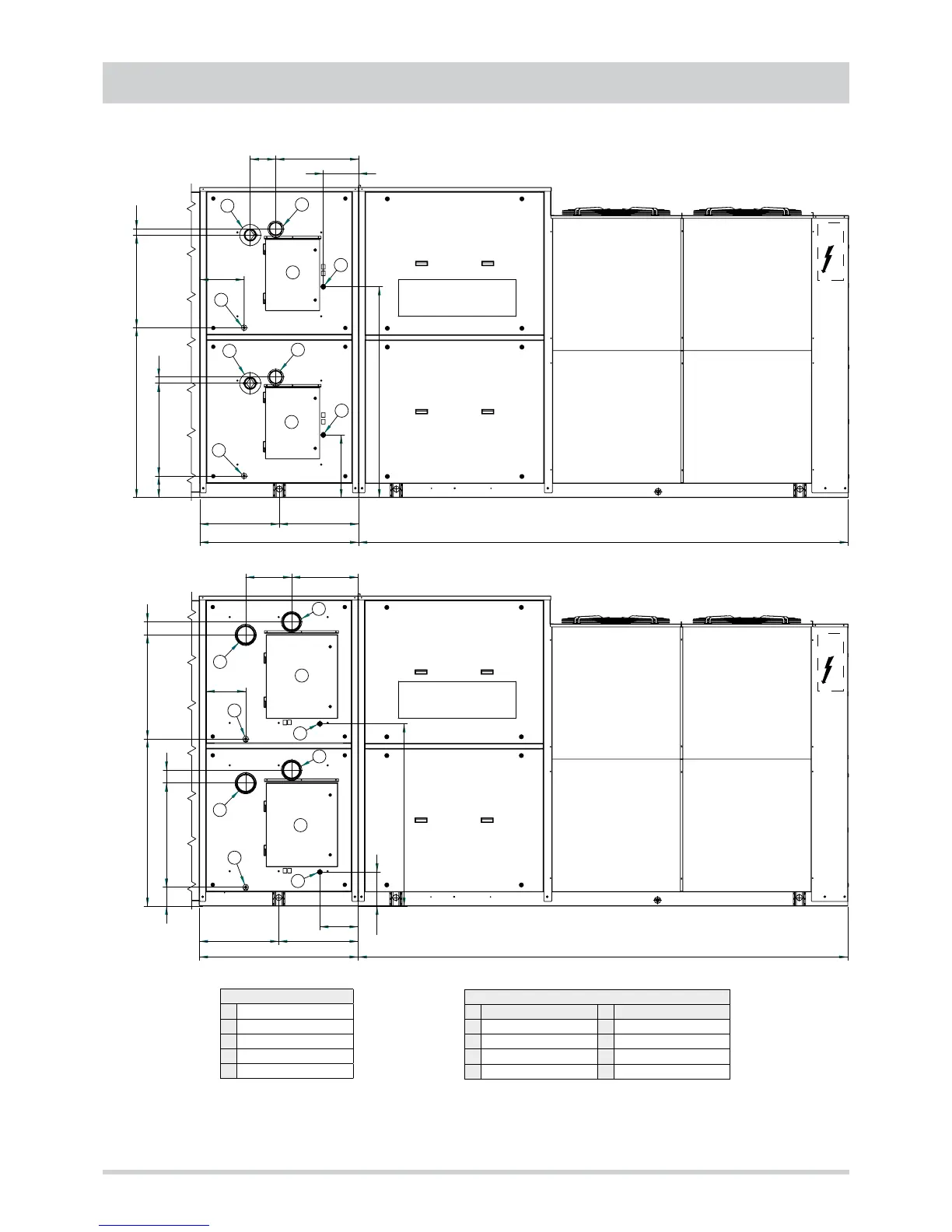
N.B.: The modules are tested and prepared for operation with G20 natural gas and a supply pressure of 20 mbar, unless different
requirements have been specified.
For further details refer to the operation and installation manual supplied with the unit.
LEGEND
1
Condensate drain
2
Flue gas discharge
3
Intake
4
Inspection panel
5
Gas inlet
140.2 ÷ 220.2
Standard Upsized
1
Ø 18 mm
1
Ø 18 mm
2
Ø 100 mm
2
Ø 130 mm
3
Ø 100 mm
3
Ø 130 mm
5
UNI ISO 7/1 – 1” M
5
UNI ISO 7/1 – 1” M
CONNECTIONS
Upsized

Table of Contents

Related product manuals