EasyManua.ls Logo

FOM INDUSTRIE BLITZ - Page 26

FOM INDUSTRIE BLITZ
152 pages
Print Icon
To Next Page IconTo Next Page
To Next Page IconTo Next Page
To Previous Page IconTo Previous Page
To Previous Page IconTo Previous Page
Loading...
20
G BG B
G BG B
G B
BLITZ
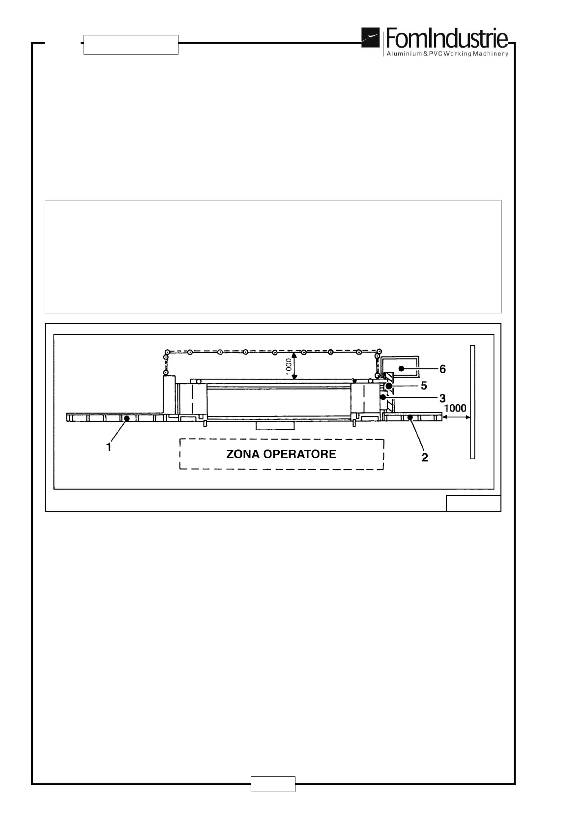
RESIDUAL RISK AREAS - CONCLUSIONS
The BLITZ, according to the contents of the paragraph “RESIDUAL RISK AREAS 1-2” could be represented
as in Fig. 04-07:
1 - Fixed head roller table
2 - Mobile head roller table (may “protrude” from the machine by a max. of 2195 mm)
3 - Mobile belt
5 - Conveyor belt
6 - Container
Taking into account the sizes shown in the figure, the barriers should therefore be arranged as in Fig. 04-04
and 04-05.
N.B: In all drawings contained in the chapter RESIDUAL RISK AREAS” the BLITZ is not shown with the
barriers fitted at the front, in both the “OPERATOR AREA” and the installation and/or operating areas
of the “ROLLER TABLES”. In fact at the front of the machine the operator will have to handle manually
the profile bars to be cut which are originally approx. 6/7 m long. The whole of the front of the machine
(including the roller table area) must therefore be free of obstacles, to allow “LOADINGthe bars which
the operator feeds into the machine from Left to Right and/or Right to Left.
Furthermore, a free space of at least 1000 mm. must be left to the Right of the mobile head roller table
(positioned as in Fig. 04-07)
04-07
List of the dangerous and residual risk areas
1. Rear area for the forced extraction of chips and fumes: It is FORBIDDEN to use the machine without
a working exhauster connected; it is in any case prohibited for anyone to stand in this area.
2. Front part: risk of trapping the arms between the mobile head in motion and the retractable profile
supports.
2. Front part: risk of arms becoming crushed between each head and relative upright - seat when the head
is tilted.
3. Risks due to the presence of electrical power.
4. Risks of being cut by accidental contact with the blade at rest and while handling workpieces that may
have sharp edges
5. Risks of being crushed due to machine movement and installation and also while handling heavy
workpieces.
6. Risks due to noise generated in the work area.
7. Risks due to inhaling smoke or fumes during machining if the extraction system provided is inadequate.
8. Risks due to machining chips being projected
With reference to that previously indicated in paragraphs 4.5 and 4.6, FOM Industrie supplies a “post and chain
barrier kit” with the machine: the assembly and installation instructions for the kit can be found in the relative
instruction manual attached to this publication.

Table of Contents

Related product manuals