EasyManua.ls Logo

Fujitsu PRIMERGY RX300 S6 - Page 128

Fujitsu PRIMERGY RX300 S6
132 pages
To Next Page IconTo Next Page
To Next Page IconTo Next Page
To Previous Page IconTo Previous Page
To Previous Page IconTo Previous Page
Loading...
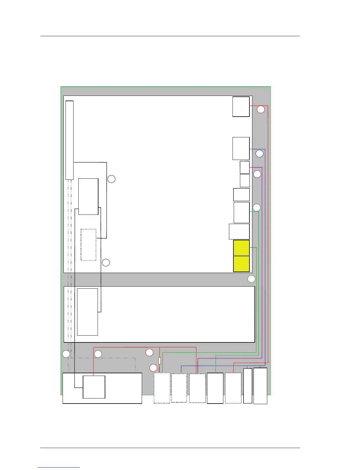
128 Options Guide RX300 S6
Appendix
6x 3.5" HDD variant with USB drive
I In this configuration you can install max. 4 HDDs!
Figure 104: Cabling for PRIMERGY RX300 S6 with 3.5" hard disk drives and 1 USB drive
System Board
D2619-N
Fan backplane
6x3,5“
SAS
backplane
SMB
Fan
FrontVGA
Frontpanel
F
ron
t
USB (3x)
ODD
SAS
Front
VGA
Front
panel
3 xFront
USB
1x
USB
Intern
only
Stick
only
Intern
only
ID TEMP
SMB
HDD
Fan
CSS
6
LSP/LSD
7b
7a
5a
1
2
3
4
DAT/RDX
8
5c
Intern
only
12V/5V
SATA1
USB1
SATA2
USB2
BBU
9

Related product manuals