EasyManua.ls Logo

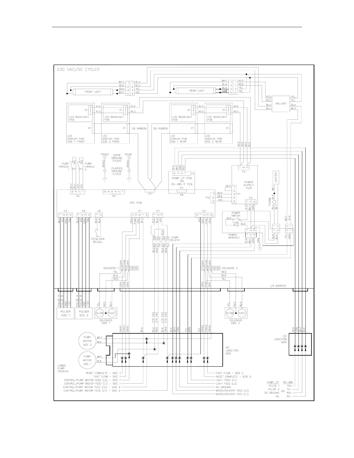
Gasboy 9800A Series - 230 VAC;50 Cycle Pump Wiring

Gasboy 9800A Series
77 pages
Print Icon
To Next Page IconTo Next Page
To Next Page IconTo Next Page
To Previous Page IconTo Previous Page
To Previous Page IconTo Previous Page
Loading...
Chassis Wiring
03/07/03
2-5
230VAC/50 CYCLE PUMP WIRING

Table of Contents

Related product manuals