EasyManua.ls Logo

Gasboy 9800A Series - LCD Display PCB

Gasboy 9800A Series
77 pages
Print Icon
To Next Page IconTo Next Page
To Next Page IconTo Next Page
To Previous Page IconTo Previous Page
To Previous Page IconTo Previous Page
Loading...
Electronic Head Assembly
03/07/03
3-9
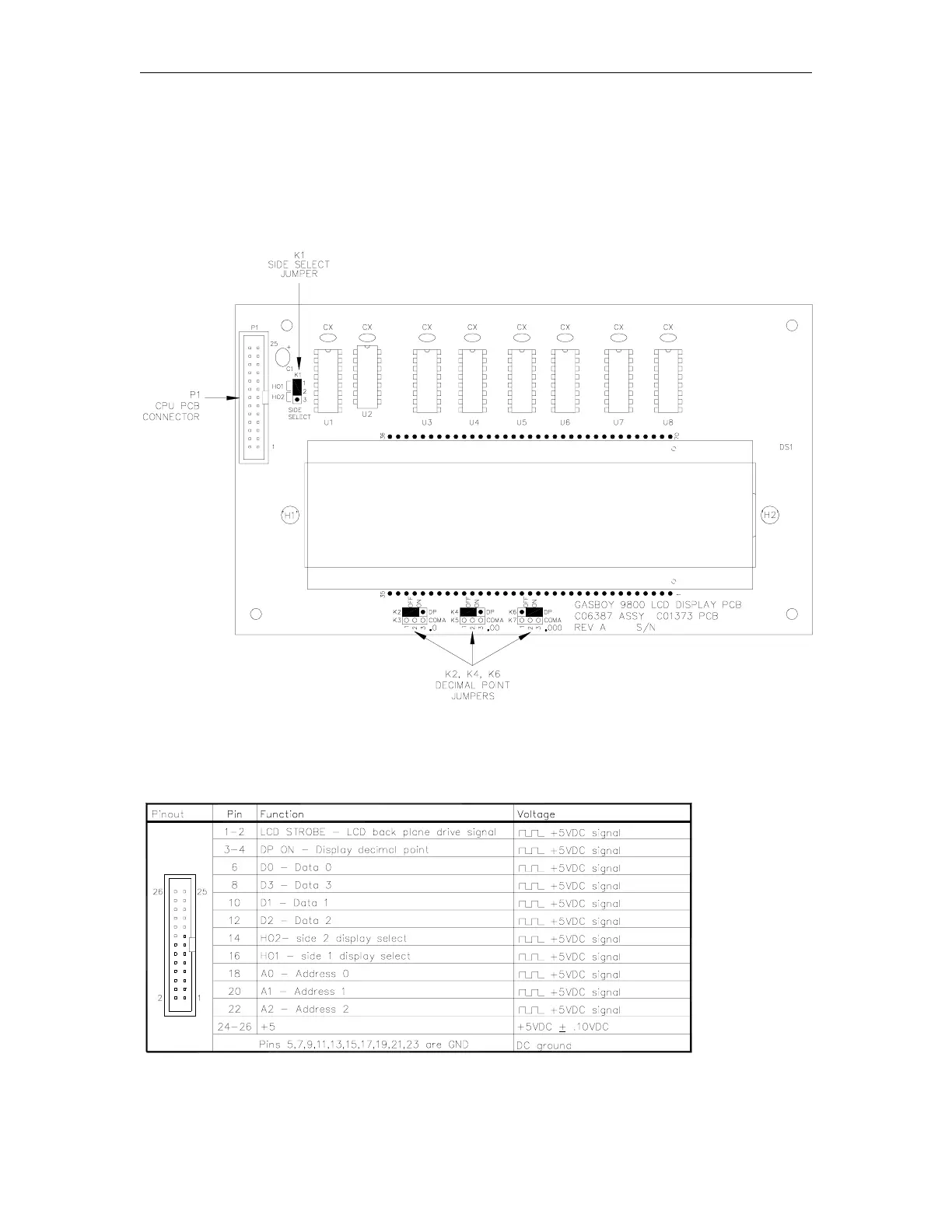
LCD DISPLAY PCB (C01373)
The LCD Display PCB contains the quantity display viewed by the user. This PCB:
displays the quantity per sale, totalizer data, and diagnostic information
Connector
P1 - CPU PCB Interface

Table of Contents

Related product manuals