EasyManua.ls Logo

Gasboy 9800A Series - CPU PCB

Gasboy 9800A Series
77 pages
Print Icon
To Next Page IconTo Next Page
To Next Page IconTo Next Page
To Previous Page IconTo Previous Page
To Previous Page IconTo Previous Page
Loading...
GASBOY Series 9800A
3-2 03/07/03
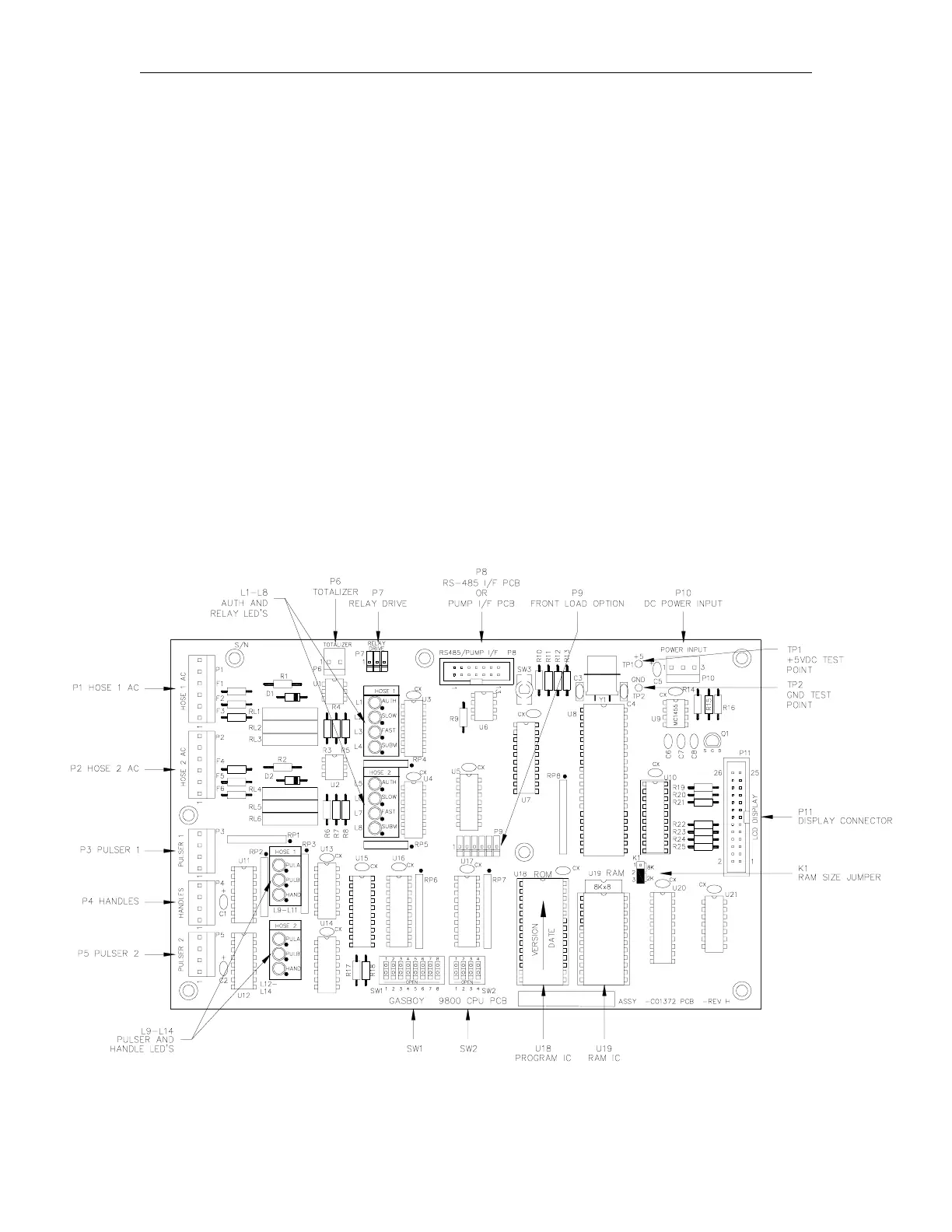
CPU PCB
Single Pump 115VAC (C06391), Twin Pump 115VAC (C06392)
Single Dispenser 115VAC (C06393), Twin Dispenser 115VAC (C06394)
Single Pump 230VAC (C06500), Twin Pump 230VAC (C06501)
Single Dispenser 230VAC (C06502), Twin Dispenser 230VAC (C06503)
The CPU PCB is the heart of the GASBOY Series 9800A. This CPU PCB:
processes and stores all 9800A data
contains a battery-backed RAM IC for transaction and totalizer data retention during power
failures
controls the data sent to the display PCB’s
controls the relays for each pump side
monitors the dual-channel pulser inputs for each pump side
monitors the handle switch for each pump side
monitors the electronic totalizer switch
sends pulser data to an external control system via an optional pump interface PCB
communicates on the GASBOY RS-485 pump loop via an optional RS-485 pump interface
PCB
allows the user to configure the 9800 through dip switches
provides diagnostic LED’s to monitor operation of the unit
Version shown is C06394

Table of Contents

Related product manuals