EasyManua.ls Logo

Gasboy 9800A Series - Electronic Head Assembly; Overall Layout

Gasboy 9800A Series
77 pages
Print Icon
To Next Page IconTo Next Page
To Next Page IconTo Next Page
To Previous Page IconTo Previous Page
To Previous Page IconTo Previous Page
Loading...
03/07/03 3-1
Section 3
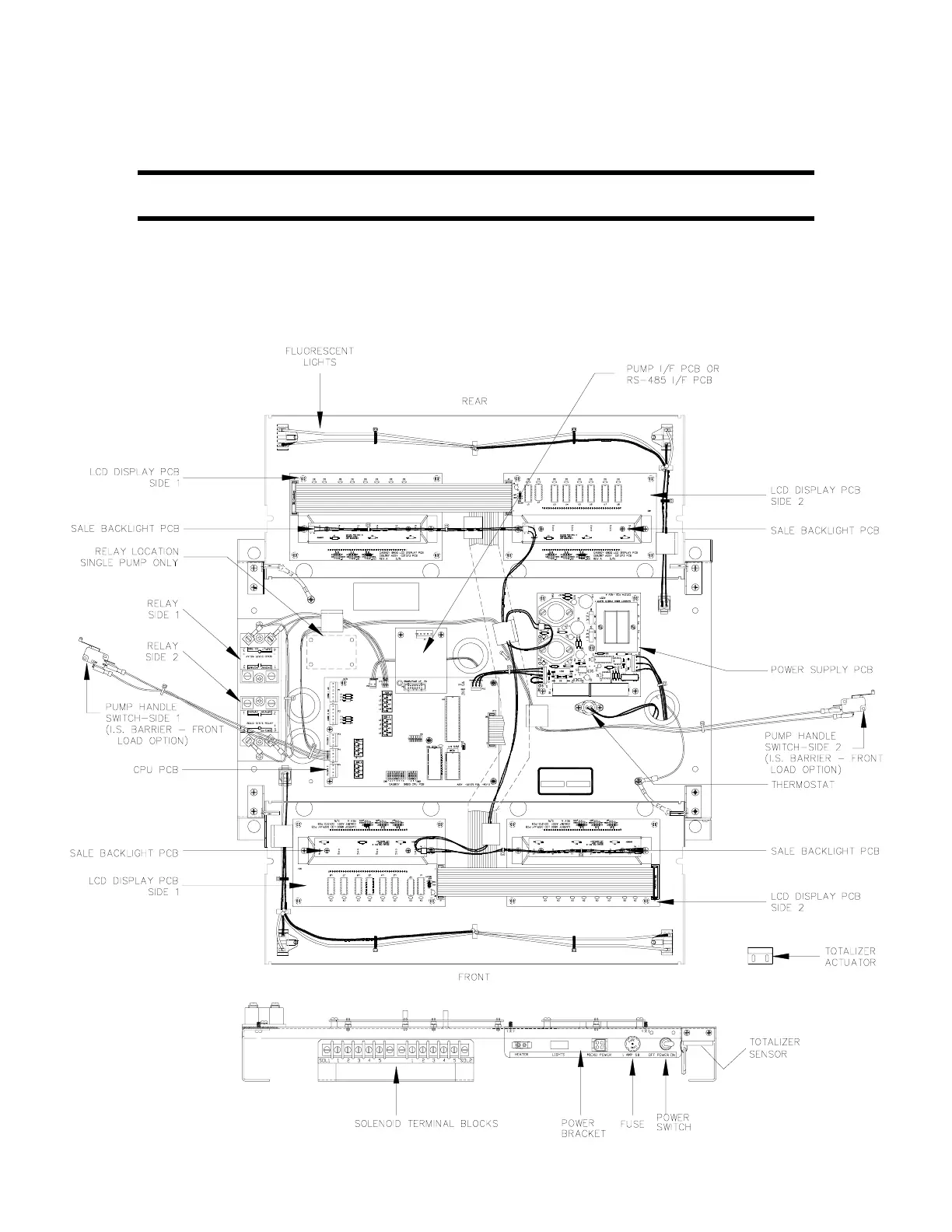
ELECTRONIC HEAD ASSEMBLY
OVERALL LAYOUT
Use this drawing as a guide to identifying the components in a 9800A electronic head assembly.

Table of Contents

Related product manuals