EasyManua.ls Logo

gefran SIEIDrive LIFT AGy -L

gefran SIEIDrive LIFT AGy -L
242 pages
Go to English
To Next Page IconTo Next Page
To Next Page IconTo Next Page
To Previous Page IconTo Previous Page
To Previous Page IconTo Previous Page
Loading...
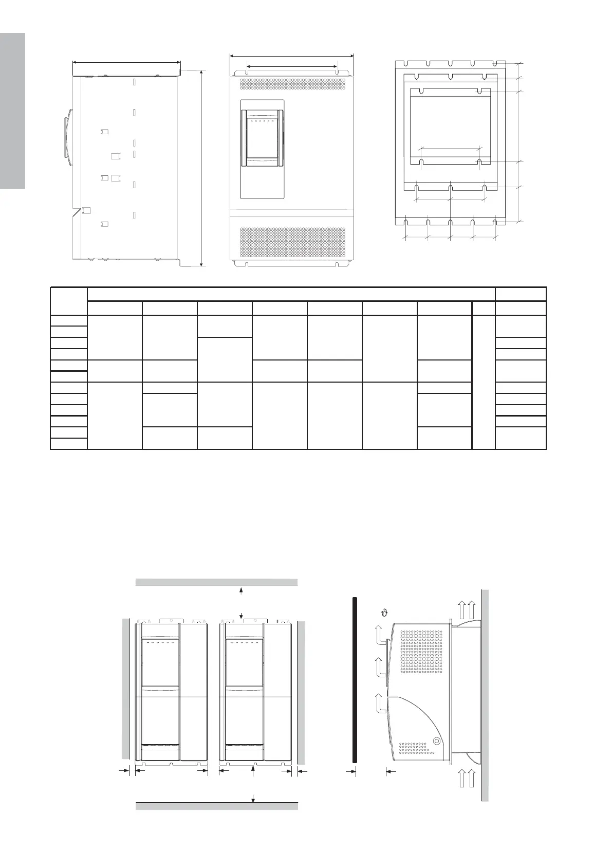
14 AGy -L
Italiano
Modelli da 4185 a 82000
c
a
D1
b
D1
D2 D2
D3 D3 D3 D3
D4
Montaggio a muro
Mounting wall (D)
Peso
a b c D1 D2 D3 D4 Ø kg (Ibs)
4185
4221
4301 22 (48.59)
4371 22.2 (48.9)
5450
5550
6750 741 (29.2) 725 (28.5) 59 (130)
7900 75.4 (166.1)
71100 80.2 (176.7)
71320 86.5 (190.6)
81600
82000
dim2-i
947 (37.3) 109 (240.3)
M6
34 (74.9)
509 (20)
297.5 (11.7)
- - 100 (3.9)
909 (35.8) 891 (35)
965 (38) 442 (17.4)
150 (5.9)
-
550 (21.6)376 (14.7) 564 (22.2)
308 (12.1)
-
475 (18.7)309 (12.1) 489 (19.2)
268 (10.5)
225 (8.8) -
Mod.
18 (39.6)
Dimensioni: mm (inch)
Distanze di Montaggio
Gli inverter devono essere sistemati in modo da garantire attorno ad essi la libera circolazione dell’aria.
La distanza superiore ed inferiore deve essere di almeno 150 mm.
Frontalmente deve essere mantenuto uno spazio libero di almeno 50 mm.
Per le taglie 81600 e 82000 la distanza superiore ed inferiore deve essere di almeno 380 mm, frontalmente e lateralmente
va mentenuto uno spazio libero di almeno 140 mm.
Non si devono installare nelle vicinanze dell’inverter altri apparecchi che generano calore.
Dopo alcuni giorni di funzionamento verificare il serraggio delle viti in morsettiera.
³
³³ ³³³
10 mm ( 0.4" )
[140mm (5.5")]
150mm(6")
[380mm (15")]
50mm(2")
[140mm (5.5)]
20 mm ( 0.8" )
[140mm (5.5")]
150 mm ( )6"
[380mm (15")]
10 mm ( 0.4" )
[140mm (5.5")]
[...] per le taglie 81600-82000

Table of Contents

Related product manuals