EasyManua.ls Logo

Gehl SL4635 - Page 77

Gehl SL4635
86 pages
Print Icon
To Next Page IconTo Next Page
To Next Page IconTo Next Page
To Previous Page IconTo Previous Page
To Previous Page IconTo Previous Page
Loading...
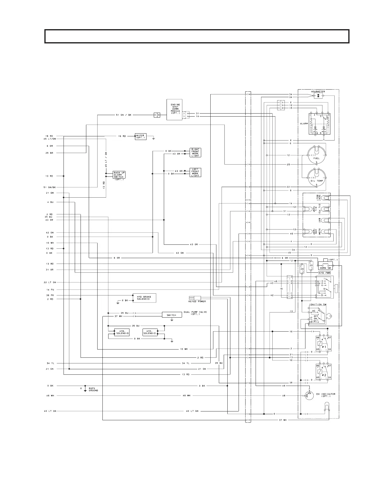
SL46/4835 Electrical Schematic
PRINTED IN USA 75 907808/CP0300

Related product manuals