EasyManua.ls Logo

Gentherm 5220 - Figure 7 - 220-Watt L;C Assembly

Default Icon
84 pages
Print Icon
To Next Page IconTo Next Page
To Next Page IconTo Next Page
To Previous Page IconTo Previous Page
To Previous Page IconTo Previous Page
Loading...
28142 Rev 15 PROCESS DESCRIPTION
Gentherm Global Power Technologies Page 18
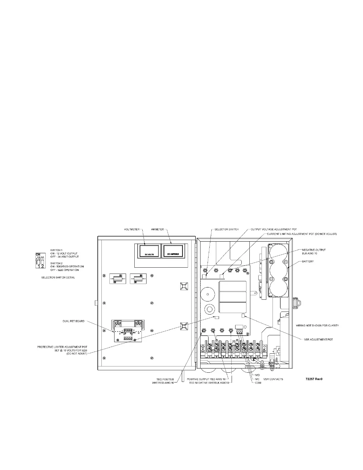
Blocking Diode: Reverse current protection is standard on the 220 W Limiter. A diode in
series with the positive output prevents current from flowing back through the converter when
the generator is shut off.
Voltage Sensing Relay: Voltage Sensing Relay (VSR) provides a set of contacts to indicate
an alarm condition when the output voltage drops below a preset minimum. Low voltages,
due to overloads, lack of fuel or a faulty generator, are detected by a voltage sensing circuit
incorporated into the voltage limiter. When a low voltage condition is detected, the Voltage
Sensing Relay (VSR) with connections NC (normally closed), NO (normally open) and COM
(common) can be used to trigger an alarm or other processes. When the generator is above
the trip voltage the connection between NO and COM is closed and the connection between
NC and COM is open. If the generator is below the trip voltage, then the connection between
NO and COM is open and the connections between NC and COM is closed. The trip voltage is
adjusted by the pot labeled VSR adjust on the VSR board as shown if Figure 6.
Volt and Amp Meters: The volt and amp meters provide indication of voltage and current
output from the Limiter board.
Power Resistor: When no load, or a very small load, is connected, the TEG has more power
available than required by the load. This excess power is directed into a power resistor by
the voltage limiter.
Figure 7 – 220-Watt L/C Assembly

Table of Contents