EasyManua.ls Logo

GILES FSH-2-PH - Remote Manual Activation Station

GILES FSH-2-PH
66 pages
Print Icon
To Next Page IconTo Next Page
To Next Page IconTo Next Page
To Previous Page IconTo Previous Page
To Previous Page IconTo Previous Page
Loading...
15
FSH2PH
Installation
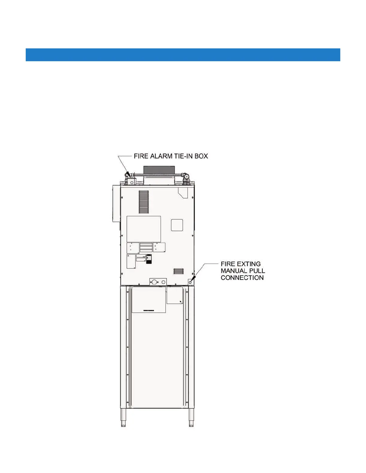
Hood requires use of the ANSUL® R102 Standard Manual Activation System. The manual pull station must be
conspicuously mounted near a path of egress and connected to the hood for activating the fire extinguishing system
from the remote location. It shall be supplied and installed by an authorized Ansul agent (customer provided).
The following illustrations depict a typical installation configuration that will allow the hood to be moved away from
the wall for cleaning and servicing without disconnecting the manual pull, or accidently discharging the system.
2.05.3 Remote Manual Activation Station (Customer Supplied)

Table of Contents

Related product manuals