EasyManua.ls Logo

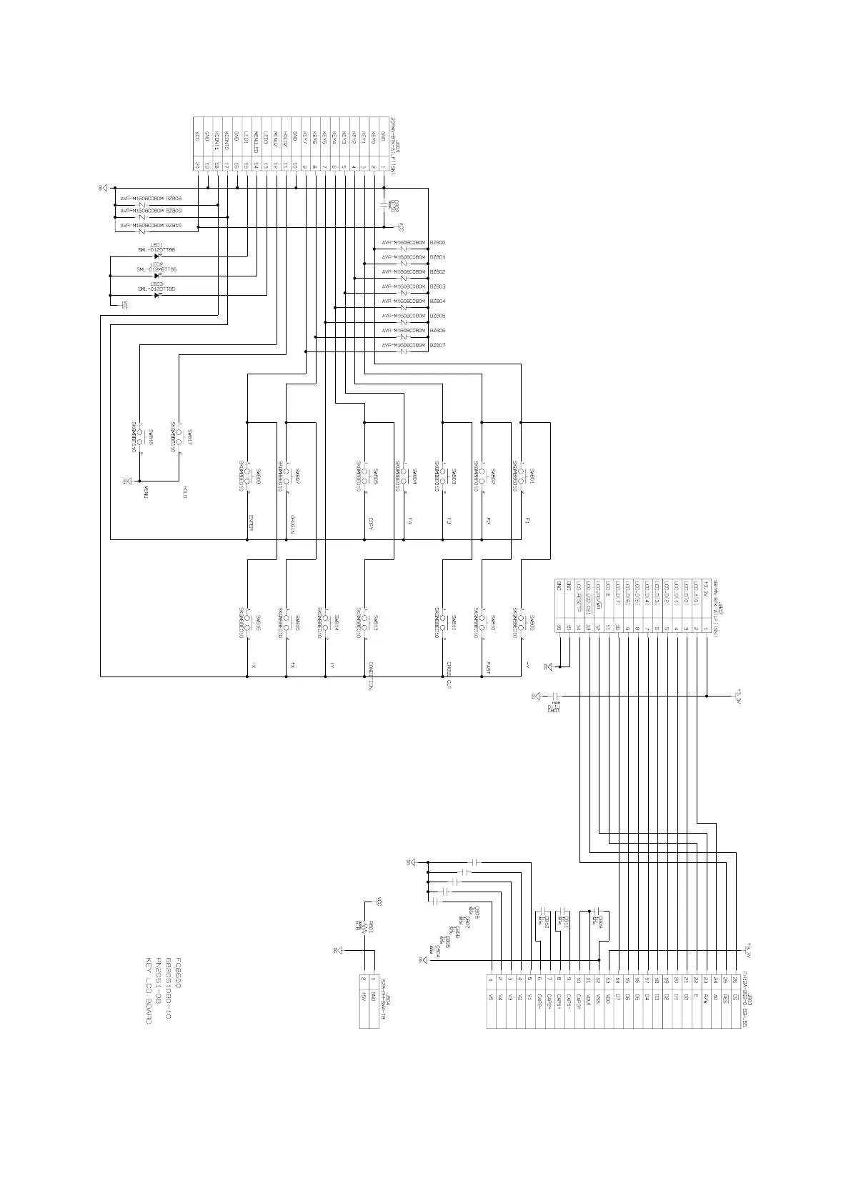
GRAPHTEC FC8600-60 - Control Panel Board

GRAPHTEC FC8600-60
152 pages
Print Icon
To Next Page IconTo Next Page
To Next Page IconTo Next Page
To Previous Page IconTo Previous Page
To Previous Page IconTo Previous Page
Loading...
FC8600-UM-251-9370 10-13
10 BLOCK DIAGRAMS AND CIRCUIT DIAGRAMS
10.2.13 Control Panel Board

Table of Contents

Related product manuals