EasyManua.ls Logo

Groen CC20-E - Page 118

Groen CC20-E
314 pages
Print Icon
To Next Page IconTo Next Page
To Next Page IconTo Next Page
To Previous Page IconTo Previous Page
To Previous Page IconTo Previous Page
Loading...
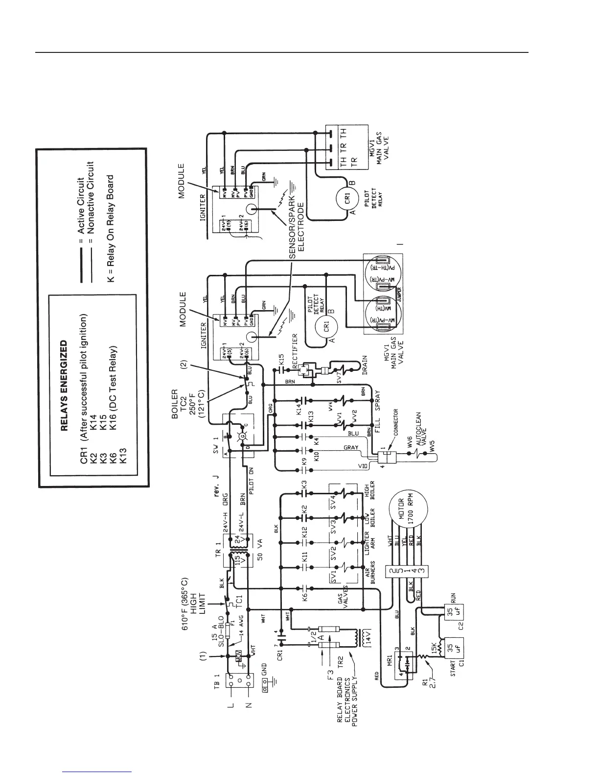
CC10-G
Electrical Diagrams
Prior to Serial Number GC7243MS
4-164-16
S
team Mode Circuit
NOTICE: Refer to the CC10-G or
CC20-G Sequence of
Events paragraph for relay
operation prior to oven
reaching operating
temperature.
NOTES:
1) SURGE SUPPRESSOR (MOV) ADDED FEBRUARY 1992.
2)
THERMAL
SWITCH (HIGH LIMIT)
ADDED APRIL 1993:
CC10G - SERIAL
NUMBER GC13230
CC20G - SERIAL NUMBER GC14501
PRIOR TO SERIAL NUMBER:
CC10G - GC13256
CC20G - GC14569
(Revised 1/02)

Related product manuals