EasyManua.ls Logo

Hallowell Acadia 024 - SPECS C - Physical Dimensions

Default Icon
63 pages
Print Icon
To Next Page IconTo Next Page
To Next Page IconTo Next Page
To Previous Page IconTo Previous Page
To Previous Page IconTo Previous Page
Loading...
APPENDIX G ACADIA SPECIFICATION SHEET
59
SPECS C
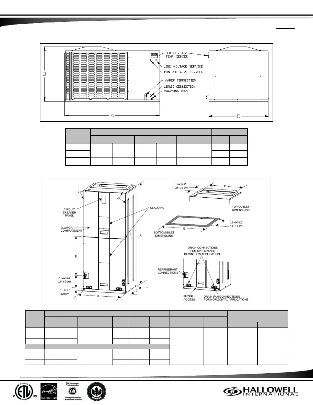
Physical Dimensions of the Acadia Outdoor Unit
Model
Dimensions
Service Valve Size
A
B
C
Liquid
Vapor
ACADIA024
48-1/2-in.
123.2-cm.
27-7/8-in.
70.8-cm.
31-in.
78.7-cm.
3/8
3/4
ACADIA036
48-1/2-in.
123.2-cm.
27-7/8-in.
70.8-cm.
31-in.
78.7-cm.
3/8
7/8
ACADIA048
48-1/2-in.
123.2-cm.
33-7/8-in.
86-cm.
31-in.
78.7-cm.
3/8
7/8
Physical Dimensions of the Factory Supplied Variable Speed Air Handler
AHU
Models
Dimensions (Inches)
Wiring Knockouts
1
Refrigerant Connection Line Size
A
B
C
D
E
F
J
K
Height
Width
Depth
Power
Control
Liquid
Vapor
AV_24B
46
17.5
22 w/o cladding
23 w/ cladding
12 3/8
13 29/32
14 19/32
7/8" (1/2")
1 3/8" (1")
1 23/32" (1 1/4")
7/8" (1/2")
3/8"

AV_36C
52
21
17 1/8
17 13/32
18 3/32
7/8"
AV_48D
57
24.5
22 1/8
20 29/32
21 19/32
Dimensions (Centimeters)
3/4
AV_24B
116.8
44.5
55.8 w/o cladding
58.4 w/cladding
31.4
35.3
37.9

AV_36C
132
53.3
43.5
44.22
46
AV_48D
144.8
62.2
56.2
53.1
55.6

Table of Contents

Related product manuals